Новочеркасск, Россия
Россия
Россия
Россия
Россия
Для строительной отрасли актуальным направлением развитие является цифровизация строительства на всех его стадиях и создание государственной информационной системы обеспечения градостроительной деятельности РФ. Создать данную систему возможно с учетом повсеместного внедрения цифровых двойников, BIM-моделей и систем управления жизненным циклом зданий. В работе рассмотрена разработка коллективом ЮРГПУ (НПИ) имени М.И. Платова BIM-моделей зданий как основы для создания цифрового двойника всего архитектурного комплекса ЮРГПУ (НПИ). Для создания BIM - модели использовалось два вида программного обеспечения: ПК ArchiCad и отечественный комплекс Renga. Отличительной особенностью создания модели являлось то, что в качестве прототипа использовалось существующее здание со значительным перестройками и изменениями объемно-планировочных и конструктивных решений, проводившимися в процессе эксплуатации. Практическим путем выявлено, что наиболее удобной для целей создания BIM-проектов является ПК Renga, так как в ней реализовано большинство функций для моделирования строительных конструкций.
цифровые двойники, информационное моделирование зданий, BIM, жизненный цикл здания
В рамках направления МинСтроя РФ по цифровизации строительной отрасли и создания государственной информационной системы обеспечения градостроительной деятельности РФ (ГИСОГД РФ) актуальным является методика создания и работы с цифровыми моделями зданий и сооружений, опасными производственными объектами, в которых проектирование проведено с учетом деградации свойств конструкций в зависимости от степени реализации негативных факторов (рисков) [1].
Правительство РФ предполагает к 2030 году переход на системы «Цифровое строительство» (создание цифровых двойников или BIM-моделей всех строящихся объектов) и «Строим в один клик» (упрощение и ускорение процедур согласования документации по строительству между участниками строительного производства и органами Минстроя). Для этого предусматривается развитие отечественных программных продуктов для ТИМ, применение технологии ТИМ в жилищном строительстве для обеспечения поэтапного перехода застройщиков, осуществляющих деятельность в соответствии с №214-ФЗ, к обязательному использованию ТИМ с 2023. К 2030 году 100% МКД должны быть оснащены общедомовыми приборами учёта, интегрированными в интеллектуальные системы, также должна быть создана «умная» экосистема строительной отрасли [2].
Цифровой двойник здания создается на основе исследования текущих характеристик конструкций и высокоточного определения размеров и положения в пространстве при помощи 3-д сканирования или фотограмметрии [3].
Информационное моделирование зданий (BIM) и управление жизненным циклом (PLM) становится инновационным способом виртуального проектирования и управления проектами. В последние годы были достигнуты соответствующие успехи в области моделирования, анализа, проектирования, мониторинга и технического обслуживания объектов. Строительная отрасль в настоящее время переживает переход к философии проектирования, ориентированной на жизненный цикл [4-5].
BIM представляет собой новую парадигму в строительной отрасли, которая способствует интеграции всех заинтересованных сторон в проект.
Целью перехода на информационное моделирование является создание модели здания, в которая состоит из трех частей: архитектурная, конструктивная, коммуникационная, позволяющей учитывать множество факторов, возникающих при обследовании, проектировании, строительстве и реконструкции, ремонте, эксплуатации и сносе объекта капитального строительства. Задача создания BIM-модели состоит из необходимости моделирования 3D визуализации, задания объектам существующих или проектируемых характеристик материалам и конструкциям, то есть создание исходных данных для дальнейшего осуществления какого-либо строительного процесса [6, 7].
Зарубежный опыт доказывает, что даже несмотря на множество исследований и инвестиций в разработку и внедрение BIM, его использование не является основной строительной практикой, а практичность процесса внедрения не совсем понятна. BIM нарушает привычный план проектирования с точки зрения его организации, поэтому предлагается использовать концептуальный подход и дорожную карту, выполняемых работ по проектированию [8, 9]. Приемлемый процесс информационного моделирования может быть достигнут только путем целенаправленного согласования планов вмешательства в модель, которые полностью поддерживают цели нескольких конечных пользователей. В исследовании [10] делается вывод о том, что обычно применяемая логика успешной линейной адаптации стандартных инструментов к институциональным моделям не работает в контексте строительства; скорее, пользователи BIM должны позиционироваться как учащиеся с постоянным циклом, чтобы знакомиться с постоянно развивающимися артефактами BIM и сопутствующими рабочими процессами для поддержания согласованности систем [11, 12].
В рамках работы было создано несколько BIM моделей зданий архитектурного ансамбля ЮРГПУ (НПИ) имени М. И. Платова в г. Новочеркасске, Ростовской области. Здания и сооружения архитектурного ансамбля являются Памятником архитектуры Федерального значения.
Для построения BIM-моделей было использовано несколько программных комплексов.
BIM-модель здания главного корпуса НПИ была разработана в ПК Archicad [13] (Рис. 1).

Рис.1. 3D-модель главного корпуса, созданная в программе Archicad.
Вид с лицевого фасада
В процессе разработки модели выявилось, что программа ArchiCAD изначально была создана для архитекторов и дизайнеров, а не для строителей. Большинство ее функций направленны на создание интерьера и элементов ландшафта. В сфере строительства и моделирования двухмерных и трехмерных конструкций программа ArchiCAD не может быть полноценно использована для создания BIM- моделей, таким образом для создания цифрового двойника здания главного корпуса необходимо выполнить моделирование здания в другом программном комплексе [14].
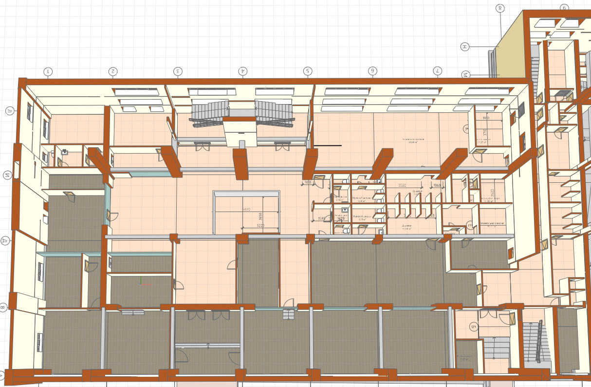
Робототехнический корпус ЮРГПУ (НПИ) (рис. 2 – рис. 5) был представлен в виде BIM-модели в ПК Renga.
Процесс проектирование в Renga можно разделить на несколько этапов:
- Рассмотрение и изучение объекта. Изучение технического паспорта проектируемого учебного корпуса и выполнение обмеров здания с помощью дальномера, поиск недостающей информации;
- Параметрическое моделирование, наполнение модели физическими свойствами для дальнейшего использования в расчетах, а также визуализации;
- Оформление планов, разрезов, по данным 3D-модели, сведение необходимых данных по проектируемому корпусу в таблицы [15].
При проектировании выявились следующие недостатки:
- Плохо реализована функция линейного размера при работе в пространстве 3D-модели;
- Имеющих инструментов недостаточно, что ограничивает более точное визуальное представление инженерных решений модели.
Также можно заметить следующие достоинства системы:
- Простой и интуитивно-понятный интерфейс, минимальный набор инструментов, позволяют освоить программу в короткие сроки;
- С помощью системы фильтров можно быстро и без особых усилий создать спецификации, ведомости и экспликации зданий. Что не только упрощает работу, но и позволяет быстро проводить корректировки и вносить изменение в проект, исключает ошибки и неточности.

Рис. 2. BIM-модель робототехнического корпуса в ПК Renga.
Вид со стороны лицевого фасада

Рис.3. BIM-модель робототехнического корпуса в ПК Renga.
Горизонтальный разрез на уровне третьего этажа

Рис.4. BIM-модель робототехнического корпуса в ПК Renga.
Вид с бокового фасада
Рис.5. BIM-модель робототехнического корпуса в ПК Renga.
Горизонтальный разрез в уровне перекрытий первого этажа
Также в ПК Renga было представлено здание бассейна ЮРГПУ (НПИ) (рис. 6 – рис. 8).
На стадии эксплуатации было проведено обследование строительных конструкций здания спортивного комплекса с плавательным бассейном ЮРГПУ (НПИ), которое выявило, что конструкции находятся в ограниченно-работоспособном состоянии.
На стадии реконструкции были выполнены соответствующие мероприятия, обеспечивающие восстановление несущей способности и эксплуатационных характеристик здания, утраченных в ходе эксплуатации.

Рис. 6. Аксонометрия здания бассейна ЮРГПУ (НПИ) в ПК Renga
Рис. 7. Полы 1-го этажа здания бассейна в ПК Renga
Рис.8. Колонны на фасаде 1-13 здания бассейна в ПК Renga
Таким образом, проведен анализ исследований, ориентированных на внедрение информационного моделирования зданий (BIM) и цифровых двойников при строительстве и модернизации существующих зданий (на примере Sodis Building и BIMIT) [16], выполнено моделирование жизненного цикла зданий на стадии проектирования, эксплуатации и реконструкции для трех корпусов комплекса, изучены способы обнаружения коллизий, выявлены преимущества и недостатки при работе с BIM-моделями в разных программах.
1. Баженов, А. А. Перспективы применения BIM-технологий в современной строительной отрасли / А. А. Баженов // BIM-моделирование в задачах строительства и архитектуры : материалы II Международной научно-практической конференции, Санкт-Петербург, 15-17 мая 2019 года. - Санкт-Петербург: Санкт-Петербургский государственный архитектурно-строительный университет, 2019. - С. 40-44. - DOIhttps://doi.org/10.23968/BIMAC.2019.006. - EDN PSHQSL.
2. Ялилов А. Д. Особенности гражданско-правового регулирования отношений в сфере проектирования и строительства при использовании технологии информационного моделирования (BIM) // Актуальные проблемы российского права. - 2022. - Т. 17. - № 11. - С. 87-99. - DOI:https://doi.org/10.17803/1994- 1471.2022.144.11.087-099. DOI: https://doi.org/10.17803/1994-1471.2022.144.11.087-099; EDN: https://elibrary.ru/ZVGQHW
3. Каракозова И.В., Малыха Г.Г., Павлов А.С., Панин А.С., Теслер Н.Д. Исследование подготовительных работ для использования BIM-технологий на примере проектирования медицинских организаций // Вестник МГСУ. 2020. Т. 15. Вып. 1. С. 100-111. DOI:https://doi.org/10.22227/1997-0935.2020.1.100-111. EDN: https://elibrary.ru/VGJUOG
4. Воронцова, О. В. Преимущества BIM-технологий при разработке проектов реконструкции / О. В. Воронцова, Ю. С. Швец // Ресурсосбережение и экология строительных материалов, изделий и конструкций: сборник научных трудов Международной научно-практической конференции, Курск, 16 ноября 2018 года / Юго-Западный государственный университет; Россия Московский государственный машиностроительный университет. - Курск: Юго-Западный государственный университет, 2018. - С. 116-118. EDN: https://elibrary.ru/YTNCVV
5. Лещенко, Е. Параметрическое проектирование и высокотехнологичное информационное моделирование строительных конструкций на основе программного решения Tekla и Grasshopper / Е. Лещенко // САПР и графика. - 2017. - № 8(250). - С. 31-33 EDN: https://elibrary.ru/YLLVZA
6. Зеленцов Л. Б., Цапко К. А., Беликова И. Ф., Пирко Д. В. Совершенствование процесса строительства с использование BIMтехнологий // Инженерный вестник Дона, 2020, № 3. URL: ivdon.ru/ru/magazine/archive/N3y2020/6346.
7. Постнов, К. В. Подход к внедрению цифровых технологий в практику работы проектных организаций // Строительство и архитектура, 2021. Т. 9. - № 4. - С. 61-65. - URL: DOIhttps://doi.org/10.29039/2308-0191-2021-9-4-61-65. EDN: https://elibrary.ru/LMESJZ
8. Xiaozhi Ma, S.M.ASCE; Feng Xiong, A.M.ASCE; Timothy O. Olawumi; Na Dong; and Albert P. C. Chan. Conceptual Framework and Roadmap Approach for Integrating BIM into Lifecycle Project Management https://doi.org/10.1061/(ASCE)ME.1943-5479.0000647
9. E. Sackey; M. Tuuli, Ph.D.; and A. Dainty, Ph.D., M.ASCE Sociotechnical Systems Approach to BIM Implementation in a Multidisciplinary Construction Context https://doi.org/10.1061/(ASCE)ME.1943-5479.0000303
10. Brittany Giel and Raja R. A. Issa, F.ASCE Framework for Evaluating the BIM Competencies of Facility Owners https://doi.org/10.1061/(ASCE)ME.1943-5479.0000378
11. Ashwin Mahalingam; Amit Kumar Yadav; and Jarjana Varaprasad Investigating the Role of Lean Practices in Enabling BIM Adoption: Evidence from Two Indian Cases https://doi.org/10.1061/(ASCE)CO.1943-7862.0000982
12. Citation Zhou, Y., Yang, Y. and Yang, J.-B. (2019), "Barriers to BIM implementation strategies in China", Engineering, Construction and Architectural Management, Vol. 26 No. 3, pp. 554-574. https://doi.org/10.1108/ECAM-04-2018-0158.
13. Конюхов, В. Ю. Информационное моделирование строительного объекта (BIM) / В. Ю. Конюхов, Т. А. Опарина // Молодежный вестник ИрГТУ. - 2020. - Т. 10, № 3. - С. 24-29. - EDN BPOXMI.
14. Перельмутер, А. В. BIM-технологии в строительном проектировании - "белые пятна" / А. В. Перельмутер, Э. З. Криксунов // Промышленное и гражданское строительство. - 2021. - № 5. - С. 60-65. - DOIhttps://doi.org/10.33622/0869-7019.2021.05.60-65. - EDN SZCUBM.
15. Официальный сайт Renga Architecture - [Электронный ресурс]. - Режим доступа:. https://rengabim.com/ - Дата обращения: 18.06.2023г.
16. Ложкин Николай Дмитриевич BIM-ТЕХНОЛОГИИ ПРОЕКТИРОВАНИЯ // Colloquium-journal. 2020. №11(63). URL: https://cyberleninka.ru/article/n/bim-tehnologii-proektirovaniya (дата обращения: 16.04.2023).



