Россия
Россия
Программой стратегического развития системы образования предусматривается создание комфортных условий для студентов, научных работников и профессорско-преподавательского состава. В соответствии с этим возникает необходимость формирования подходов к построению новой инновационной образовательной среды или кампусов, включающей не только жилые зоны и общественные пространства, но и зоны для ведения научной деятельности: учебные пространства и лаборатории. В данной статье проводится анализ зон, характерных для современного кампуса, предлагаются планировочные решения и структура.
кампус, модульная архитектура, наука и образование, приоритет 2030, общежитие
Введение
На сегодняшний день при поступлении в высшие учебные заведения иногородних абитуриентов особенно актуальной является проблема предоставления обучающимся общежитий. В соответствии с мониторингом Министерства науки и высшего образования РФ, в 2020 году 18 процентов студентов (более 150 тысяч человек) из топ-100 вузов России не получили места в общежитии, хотя нуждались в нем. [1, 2]. Ситуация осталась неизменной и в 2021 году. При этом если в центральных регионах ситуация удовлетворительная, то местами необеспеченность общежитиями превышает 50% и даже достигается 90% [3].
В целях решения данной задачи 28 июля 2021 года Постановлением №1268 было утверждено Положение о реализации проекта по созданию инновационной образовательной среды (кампусов) с применением механизмов государственно-частного партнерства и концессионных соглашений в рамках федерального проекта "Развитие инфраструктуры для научных исследований и подготовки кадров" национального проекта "Наука и университеты" [4]. В соответствии с этим были сформулированы правила предоставления господдержки на строительство университетских кампусов на территориях муниципальных образований.
Следует заметить, что современный кампус - это не просто общежитие для обучающихся, научно-педагогических и научных работников вуза, но и пространства для самостоятельной работы, научной деятельности, досуга, занятий спортом. Кампусы могут включать объекты образования, культуры, спорта, объекты, используемые для организации отдыха граждан и туризма, а также иные объекты социального обслуживания населения.
В соответствии с этим возникает необходимость формирования новых подходов к построению инновационной образовательной среды.
1. Анализ функциональных зон
Как уже говорилось, современный кампус должен обеспечивать разносторонние интересы жителей. В соответствии с этим выделим основные функциональные зоны (рис.1).

Рис. 1. Функциональные зоны современного кампуса
В первую очередь это жилая зона, которая может быть реализована как в виде совместного проживания, так и в виде квартир. Совместное проживание коридорного или блочного типа традиционно предоставляется обучающимся бакалавриата, специалитета или магистратуры. Квартирный тип проживания характерен для преподавательского состава и обучающихся на уровне подготовки кадров высшей квалификации.
Научно-образовательная зона. Данное пространство включает в себя не только библиотеки и компьютерные классы, но и научные лаборатории для проведения исследований, лектории и конференц-залы, творческие мастерские для реализации архитектурных, художественных и прикладных проектов.
Общественная зона является неотъемлемой частью жилой зоны. К ней относятся пункты питания, причем это могут быть как столовые или буфеты, так и зоны готовки и приема пищи. В данной зоне есть возможность отдохнуть от научного процесса - поиграть в настольный теннис, посмотреть кино, встретиться с друзьями, заняться спортом, поиграть в настольные игры или устроить дискотеку.
Административно-бытовая зона содержит комнаты администрации, а также подсобные помещения: прачечные, гладильные, склады.
2. Планировочные решения жилой зоны
При проектировании кампуса необходимо руководствоваться конкретными внешними условиями и потребностями высшего учебного заведения. Предлагаемая архитектурное решение является модульным и позволяет подстраивать структуру под текущие требования. Предусмотренные в модульных ячейках шахты позволяют осуществлять произвольную компоновку внутри блока.
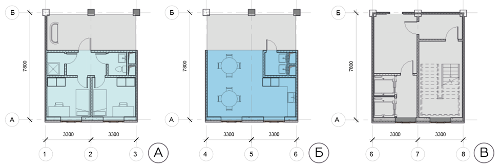
В модульной системе предусмотрены решения для всех рассмотренных функциональных зон [5, 6], однако в рамках данной статьи рассмотрены планировки жилых этажей. Далее представлены типовые блоки - жилой, блок для приготовления и приема пищи и лестнично-лифтовой узел.

Рис. 2. А - планировка типового жилого блока; Б - планировка блока для приготовления и приема пищи; В - лестнично-лифтовой узел
3. Структура кампуса
Первые два этажа кампуса отводятся на административную, общественную и научно-образовательную зону. Административная зона предусматривает отдельный вход. Помещения каждой из зон и их площади, рассчитанные по действующим нормативам из расчета на 100 человек [7] приведены в Таблице 1.
Таблица 1.
Состав и площади помещений кампуса
|
Жилые помещения |
||
|
1 |
Жилые ячейки блочного типа |
1600 м2 (16 м2 х 100) |
|
Общественные помещения |
||
|
2.1 |
Вестибюль |
15 м2 |
|
2.2 |
Помещение для отдыха, досуга |
90 м2 |
|
2.3 |
Помещения для спортивных занятий и культурно-массовых мероприятий |
40 м2 |
|
2.4 |
Кухни жилых блоков и общие кухни (по 12 чел на кухне) |
108 м2 (12 м2 х 9) |
|
Подсобные помещения |
||
|
2.6 |
Кладовые для хозяйственного инвентаря, камеры хранения личных вещей, бельевые |
25 м2 |
|
2.7 |
Помещения для стирки, сушки и глажения белья/одежды |
15 м2 |
|
Помещение администрации |
||
|
3.1 |
Кабинет руководителя |
12 м2 |
|
3.2 |
Кабинет заместителя руководителя |
12 м2 |
|
3.3 |
Кабинет главного инженера (техника) |
8 м2 |
|
3.4 |
Кабинет завхоза |
12 м2 |
|
3.5 |
Помещение вахтера (охрана) |
12 м2 |
|
3.6 |
Отдел кадров |
12 м2 |
|
3.7 |
Бухгалтерия: рабочие помещения |
16 м2 |
|
3.8 |
Бухгалтерия: касса |
6 м2 |
|
3.9 |
Уборные |
3 м2 |
На рис. 3А изображено зонирование типового этажа. На каждом типовом этаже кампуса предусмотрены места проживания для 24 человек. Кроме жилых ячеек на каждом этаже предусмотрены общественные пространства - место для приема и приготовления пищи и помещение для отдыха и досуга.
Зонирование помещений административной зоны (рис. 3Б), включает в себя кабинеты руководства, бухгалтерии и сотрудников.
Входная группа первого этажа (рис. 3В), содержит вестибюль, пост охраны, лестнично-лифтовой холл, связывающий все этажи здания. Кроме того, к входной группе примыкают подсобные помещения и зал для спортивных занятий и культурно-массовых мероприятий.

Рис. 3. А - зонирование плана типового этажа; Б - зонирование помещений административной зоны; В - зонирование входной группы и бытовых помещений
Далее (рис. 4) представлена компоновка вышеуказанных зон по этажам кампуса. Для размещения 100 человек необходимо 6 этажей. Общая площадь кампуса составляет 4590 м2, площадь каждого этажа - 765 м2. Для размещения большего количества проживающих можно увеличить этажность здания или увеличить количество модулей на существующем этаже.

Рис. 4. Поэтажное зонирование кампуса, рассчитанного на 100 проживающих
Заключение
Нацеленность правительства Российской Федерации на создание инновационной образовательной среды, призванной обеспечить создание новых научных знаний, технологий и разработок для внедрения в российскую экономику и социальную сферу ставит перед университетами важнейшую задачу для дальнейшего развития. Одно из направлений такого развития - это создание университетских кампусов. Современный кампус - это многофункциональный комплекс помещений, обеспечивающий комфортные условия жизни, образования, научной деятельности, отдыха и досуга для студентов и сотрудников университета. В данной статье проводится анализ функциональных зон кампуса, наполнение которых необходимо обеспечить. Предложенная модульная система планировок дает возможность гибкого использования для реализации поставленной задачи.
1. Лиферов Д., Киричек А., Нетяев В., Шкаринова В. ГОРИЗОНТАЛЬНАЯ РОССИЯ. «Подавали заявки около 100 человек, а получили место 40». Почему некоторые студенты российских вузов остаются без общежития 8 СЕН 2021 https://7x7-journal.ru/articles/2021/09/08/nehvatka-mest-v-studencheskih-obshezhitiyahujl
2. Министерство высшего образования и науки РФ. Форма № ВПО-2 «Сведения о материально-технической и информационной базе, финансово-экономической деятельности образовательной организации высшего образования» https://monitoring.miccedu.ru/?m=vpo, https://minobrnauki.gov.ru/action/stat/highed/
3. Информационно-аналитические материалы по результатам проведения мониторинга эффективности деятельности образовательных организаций высшего образования 2021
4. Постановление Правительства Российской Федерации от 28 июля 2021 г. № 1268 http://static.government.ru/media/files/wdCfDsqYAHFBS7kPbdBcVnBYxMAvwXwz.pdf
5. Балакина А.Е., Павлюк А.С. Коливинг - трансформации инфраструктуры // Проект Байкал. Инфраструктура. 2021. №. 70. С. 156-161.
6. Широкова О.Л., Павлюк А.С. Планировочные решения помещений для удаленной работы // Строительство и архитектура. 2021. №. 4. С. 86-90. DOI: https://doi.org/10.29039/2308-0191-2021-9-4-86-90 (дата обращения: 19.01.2022).
7. Свод правил СП 379.1325800.2020. Общежития. Правила проектирования.




