Россия
Россия
В данной статье проводится исследование различных аспектов удаленной работы. Дается определение, выявляется нормативная база. Проводится анализ основных преимуществ и недостатков. Выявляются негативные факторы, затрудняющие осуществление работы в домашних условиях. В качестве компенсации выделенных факторов предлагается использование открытых пространств, также называемых коворкингами. Для организации удаленной работы выделяются пять групп потребностей. Для удовлетворения этих потребностей создаются соответствующие рабочие места. Это изолированные помещения, открытые зоны, переговорные комнаты, творческие мастерские, помещения групповых активностей. Для создания открытого пространства разработаны типовые модульные планировочные решения в которых предусмотрены четыре зоны: офисная зона, включающая перечисленные виды помещений, зона административных и служебных помещений, транзитные и вспомогательные помещения, зона досуга и отдыха. При необходимости предусмотрена возможность изменения планировочных решений.
коворкинг, открытое пространство, удаленная работа, дистанционная работа, модульное планировочное решение
Введение
Современное общество постепенно переходит на удаленный формат работы. Удаленная работа является рабочим процессом, который осуществляется вне привычного места работы [1]. При этом работодатель и наёмный работник находятся на значительном расстоянии друг от друга. Их взаимосвязь, передача технических заданий, результатов труда, оплата работ обеспечивается через современные средства связи, основанные на информационно-коммуникационной сети Интернет. В результате достигается большая экономия времени, его затрат на перемещения транспортом, а, следовательно, возникают новые возможности сотрудничества на значительно более обширных пространствах, включая международное сотрудничество, сотрудничество между континентами.
Особенностью современного этапа развития удаленного формата работы явилось возникновение нового катализатора этого процесса, возникшего из-за события 2020 года – массовой самоизоляции людей в период пандемии Covid-19. Вместе с тем это, с одной стороны, ускорило процесс, а другой – вывело его на новый уровень, который не спадет и в дальнейшем. Это подтверждают и данные Forbes: «Современный бизнес мобилен, активно развивается и приобретает нарастающие международные связи, после завершения пандемии, компании продолжат использовать возможности удаленной работы» [2].
Однако, резкий рост объемов удаленного формата работы в период пандемии, вскрыл и ряд определенных трудностей. По данным различных опросов [3] организаторов и участников удаленного формата работы выяснилось, что к основным проблемам реализации удаленного формата работы относятся:
- отсутствие привычной рабочей атмосферы
- родственники и дети отвлекают от рабочего процесса
- домашние дела «выбивают» из рабочего графика
- отсутствие концепции и обустроенного рабочего места.
Целью настоящей работы является
1.Анализ и ранжирование проблемных факторов реализации удаленной работы
2.Исследование факторов, затрудняющих реализацию удаленного формата работы
3.Разработка способов преодоления трудностей реализацию удаленного формата работы.
1. Анализ и ранжирование проблемных факторов реализации удаленной работы
Вопрос организации удаленной работы в той или иной степени рассматривался на разных этапах развития нашего государства. Так, в течение 1930–1990-х годов существовало понятие «надомный труд», однако такой вид работы рассматривался как исключительная мера для граждан, которые по объективным причинам не могли трудиться на производстве [4].
Дистанционная работа, как способ заработка без использования ресурсов работодателя появилась с развитием средств коммуникаций и информационных технологий. Однако, первые положения для регулирования дистанционной работы были внесены в Трудовой кодекс Российской Федерации только в 2013 году. Реалии условий пандемии внесли свои требования и 8 декабря 2020 г. был подписан Федеральный закон № 407-ФЗ «О внесении изменений в Трудовой кодекс Российской Федерации в части регулирования дистанционной (удаленной) работы и временного перевода работника на дистанционную (удаленную) работу по инициативе работодателя в исключительных случаях».
Данный Федеральный закон урегулировал отношения, возникающие в случае, когда между работником и работодателем достигнуто соглашение о дистанционном (удаленном) формате работы или в случае необходимости перевода работника на такой вид работы в одностороннем порядке по инициативе работодателя в строго определенных случаях на строго определенный период, ограниченный 6 месяцами
Кроме того, в Трудовом кодексе было введено определение понятия «дистанционная (удаленная) работа», под которой предлагается понимать обеспечение реализации трудовой функции, которая установлена положениями трудового договора. Указанная трудовая функция исполняется при использовании информационно-телекоммуникационных сетей (Интернет) вне места нахождения работодателя или его филиала и (или) представительства, иного обособленного структурного подразделения, а также вне стационарного рабочего места, закрепленного за работником, и территории или объекта, которые находятся под контролем работодателя. [5, 6].
Стремительный переход на удаленную работу в 2020 выявил ряд как положительных сторон, так и ряд неудобств. Среди преимуществ можно выделить: сокращение затрат на офис, возможность найма персонала из регионов, гибкий график для персонала. Тем не менее, весьма существенны и недостатки. В апреле 2020, в период самоизоляции, было проведено исследование ТАСС [3]. В опросе приняли участие более 400 респондентов, мужчины и женщины от 25 до 45 лет, проживающие в городах-миллионниках (Рис. 1).
По результатам данного исследования было установлено, что более 45% опрошенных жаловались на отсутствие привычной рабочей атмосферы, более 40% отмечают, что родственники и дети отвлекают от рабочего процесса. Помимо этого, трудности вызывает тот факт, что удаленная работа проходит непосредственно на территории проживания – 37% респондентов домашние дела выбивают из рабочего графика, а 36% опрошенных обращают внимание на однообразие жизни, отсутствие «смены декораций». 34% беспокоило отсутствие обустроенного рабочего места и техники, 30% респондентов отметили трудности вовремя переключиться с рабочего режима на домашний. Около 30% трудно организовать себя и заставить работать.

Рис. 1. Негативные факторы дистанционной работы, выявленные в исследовании ТАСС во время периода самоизоляции в 2020 году
2. Классификация дистанционной деятельности и формирование путей ее обеспечения
Исторически дистанционная работа была особенно удобна для фрилансеров, которые сами находили клиентов, выполняли требуемые задания и получали оплату. К сфере такой деятельности относится публицистика, дизайн, веб-дизайн, переводы, рекламная деятельность, а также продажи через Интернет [7].
Однако пандемия и карантинные мероприятия внесли свои коррективы. Согласно исследованию, проведенному агентствами CNews Analytics, «Инфосистемы Джет» и Citrix [8] в крупных компаниях из динамично развивающихся отраслей экономики, в том числе финансовой сферы, торговли, промышленности, добывающих отраслей 83% респондентов сообщили, что не менее половины офисных сотрудников трудилось удаленно, а в 35% компаний удаленно работали более 90% сотрудников. Кроме того, исходя из полученного опыта, более 80% опрошенных предполагают и в дальнейшем в той или иной степени использовать удаленный режим работы, и только 19% не определились или полностью хотят отказаться от дистанционки.
На сегодняшний день наиболее эффективно могут работать удаленно специалисты следующих сфер деятельности: программисты, аналитики данных, бухгалтеры и экономисты, маркетологи, журналисты, копирайтеры, дизайнеры, инженеры, операторы колл-центров, представители творческих профессий. [9]
Как было выявлено ранее, наиболее существенными недостатками работы дома являются:
- отсутствие привычной рабочей атмосферы;
- родственники и дети отвлекают от рабочего процесса;
- домашние дела выбивают из рабочего графика;
- однообразие жизни, “нет смены декораций”;
- отсутствие обустроенного рабочего места и техники;
- трудно вовремя переключиться с рабочего режима на домашний;
- трудно организовать себя и заставить работать;
- низкое качество и скорость работы коллег на удаленной связи.
Перемещение сотрудников из квартир на придомовые территории - открытые пространства (коворкинги) позволяет переключиться от домашних дел и в полной мере сконцентрироваться на работе. Полноценно оборудованный коворкинг позволит решить проблемы с обустройством рабочего места, обеспечением техническими ресурсами.
Проанализировав виды деятельности можно выделить следующие группы потребностей дистанционных работников и ресурсы, необходимые для их удовлетворения
- Сотрудники, которым для полноценной работы необходимо автономное рабочее место с достаточной звукоизоляцией. Сюда можно отнести преподавателей, проводящих онлайн занятия, сотрудников, проводящих дистанционные переговоры, психологов, операторов колл-центров. Для этой группы целесообразно выделить отдельные помещения с предоставлением персонального компьютера с доступом в Интернет, обеспеченному средствами аудио и видеосвязи. В качестве телефонной связи удобно использовать ip-телефонию. Печатающие или многофункциональные устройства могут быть предоставлены как в рабочем помещении, так и централизованно на удаленном принт-сервере.
- Сотрудники для работы которых не требуется изолированного рабочего места. К этой группе можно причислить большинство профессий: бухгалтеров, экономистов, дизайнеров, переводчиков и других. Разместить такие рабочие места можно в общей комнате. Для данной группы достаточно наличие персонального компьютера и средств связи. Длительного времени для ведения переговоров, как правило, не требуется, следовательно, не будет создаваться и помех соседям.
- Несмотря на повсеместное использование дистанционных коммуникационных технологий, в ряде случаев для решения стратегических вопросов необходимо личное присутствие группы сотрудников в одном месте. Для таких случаев предусматривается создание переговорных комнат, снабженных столом и проекционным оборудованием для просмотра презентаций.
- Для людей творческих профессий востребованными являются мастерские в которых предусмотрено наличие основного оборудования для работы и проведения мастер-классов.
- Помещения для групповых активностей. Сюда можно отнести конференц-залы, места для презентаций, проведения различных мероприятий. Зал снабжается проекционным оборудованием, стульями для слушателей. При необходимости стулья могут быть собраны и пространство может быть использовано, например, для выставок.
В современных условиях, чаще всего люди предпочитают работать, используя собственные ноутбуки с привычным интерфейсом и программным обеспечением. Однако, следует предусмотреть и стационарные персональные компьютеры
Вне зависимости от масштаба и вида дистанционной деятельности, для обеспечения функционирования компьютерной техники, для выхода в сеть Интернет требуется построение вычислительной сети. При этом часть компьютеров может подключаться к роутеру с помощью витой пары, а часть - с помощью Wi-Fi. Последнее особенно актуально, если пользователи используют свои ноутбуки.
Использование в сети выделенного файл-сервера даст возможность предоставления дискового пространства на временной или постоянной основе. Кроме того, выделенный сервер даст возможность более четкой организации учета использования ресурсов. Для размещения коммуникационного оборудования в коворкинге предусматривается серверная комната.
Несмотря на то, что многие предприятия сейчас переходят на безбумажный документооборот, часто возникает необходимость вывода на печать как различных документов, так и чертежей, фотографий, графических изображений. Для реализации этой потребность в открытом пространстве будет выделена отдельная комната с печатающими устройствами, сканерами, копирами, плоттерами и другой оргтехникой, которыми на определенных условиях смогут воспользоваться все пользователи коворкинга.
3. Синтез типологии изолированных пространств
Таким образом, чтобы избежать ряда неудобств, но при этом сохранить все положительные качества удаленной работы – такие как гибкий график и отсутствие необходимости тратить время на дорогу, предлагается создание специально отведенного общественного пространства для резидентов жилого комплекса.
Данное пространство будет предназначено для удаленной работы и позволит на время уединиться от домашних дел и домочадцев. Помимо этого, там будет создана рабочая офисная атмосфера, в которой нуждаются люди.
Пространство будет состоять из трансформируемых ячеек, которые можно видоизменять в зависимости от потребностей определенного периода времени. Так, одно крупное помещение для конференций может быть легко разделено на несколько небольших кабинетов для индивидуальной работы. Для этого могут быть использованы мобильные перегородки.
В здании предусмотрена модульная каркасно-стеновая конструктивная система. Несущие стены расположены по внешнему контуру здания. Внутри в качестве несущих конструкций используются колонны прямоугольного сечения. Размеры модуля - 7800 мм в глубину и 6600 мм в ширину. Модульная система позволяет в зависимости от текущих потребностей и количества пользователей изменять состав ячеек и их зонирование.
Пространство состоит из четырех зон:
- Офисная зона,
- Административные и служебные помещения,
- Транзитные и вспомогательные помещения,
- Зона досуга и отдыха.
Компоновка зон приведена на рис.2.

Рис. 2. Зонирование открытого пространства
Состав планируемых помещений выделенных зон и их площади в соответствии с санитарными требованиями и сводами правил [10, 11] приведены в Таблице 1.
Таблица 1.
Концепция перечня необходимых помещений
|
№ |
Назначение помещения |
Макс. кол-во человек в помещении |
Площадь помещения |
|
Офисная зона |
|||
|
1 |
Автономное рабочее место |
1 |
6 м2 |
|
2 |
Переговорная комната для очных встреч |
8 |
14 м2 |
|
3 |
Зал для конференций |
36 |
52 м2 |
|
4 |
Офис открытого типа |
10 |
52 м2 |
|
5 |
Творческая мастерская |
18 |
28 м2 |
|
6 |
Принтерная комната |
3 |
17 м2 |
|
Административные и служебные помещения |
|||
|
7 |
Серверная комната |
1 |
8,5 м2 |
|
8 |
Администрация |
3 |
43,5 м2 |
|
Транзитная и бытовая зона |
|||
|
9 |
Гардероб, прихожая |
6 |
52 м2 |
|
10 |
Хранение офисных принадлежностей, шкафчики |
3 |
8 м2 |
|
11 |
Сан. узел |
6 |
52 м2 |
|
Зона досуга и отдыха |
|||
|
12 |
Место для приема пищи |
21 |
52 м2 |
|
13 |
Комната отдыха |
15 |
52 м2 |
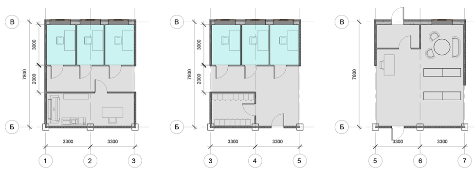
На рис.3-6 приведены планировочные модули указанных помещений.

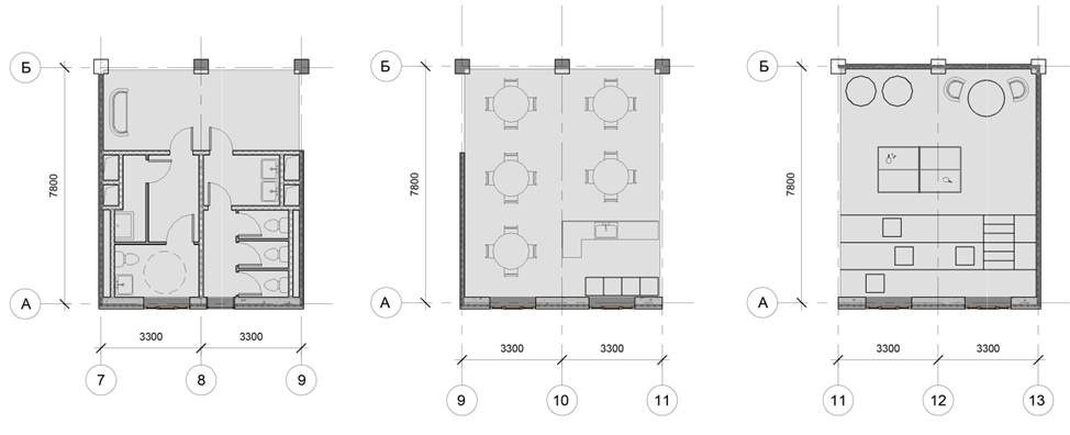
Рис. 3. Планировочные модули. В осях 1-3: автономные рабочие места, принтерная комната, транзитная зона. В осях 3-5: автономные рабочие места, комната для хранения офисных принадлежностей, транзитная зона. В осях 5-7: прихожая, тамбур, гардероб

Рис. 4. Планировочные модули. В осях 7-9: творческая мастерская, транзитная зона. В осях 9-11: переговорные комнаты для очных встреч, транзитная зона. В осях 11-13: офис открытого типа

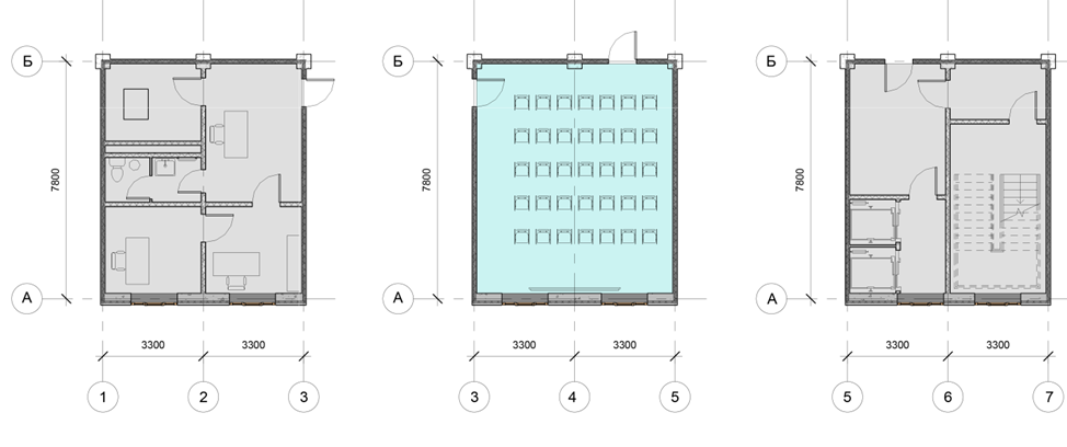
Рис. 5. Планировочные модули. В осях 1-3: серверная, кабинеты администрации, служебный сан. узел. В осях 3-5: зал для конференций. В осях 5-7: лестнично-лифтовой узел жителей дома. Транзит для жителей дома в офисное пространство

Рис. 6. Планировочные модули. В осях 7-9: Сан. узел, сан. узел для людей с ограниченными возможностями, комната уборочного инвентаря, транзитная зона. В осях 9-11: зона для приема пищи. В осях 11-13: зона досуга и отдыха
Выводы
В ходе работы были проанализированы мировые тенденции и определен дальнейший вектор развития дистанционного вида деятельности, в соответствии с которым в будущем люди все больше и больше будут переходить на данный вид работы. Далее были определены нормативные документы, регламентирующие деятельность при удаленном способе работы. Выявлены трудности, с которыми столкнулось население при удаленной работе в период самоизоляции весной 2020 года. Для того, чтобы облегчить ряд негативных факторов, были предложены планировочные решения модулей для коворкинга. Планируется размещать их на первых этажах жилых зданий.
В соответствии с потребностями жителей, было выделено 5 основных необходимых типов офисов: автономное рабочее место, в котором есть возможность проводить аудио- и видеоконференции с коллегами; офис открытого типа; переговорные комнаты для очных встреч; творческие мастерские; зал для конференций. Были спроектированы планировочные решения для каждого из указанных типов.
Помимо этого, было создано зонирование всего пространства со всеми необходимыми вспомогательными помещениями для плодотворной работы. В дополнение к офисной зоне предусмотрены бытовая и транзитная зона, административная зона, зона досуга и отдыха. Для каждой из них была рассмотрена предполагаемая меблировка помещений.
1. Жидяева Е.С., Кувалдина Е.А. Преимущества и недостатки удаленной работы // Международный журнал гуманитарных и естественных наук. 2021. №4-3.
2. Бизнес-тренды 2020: дистанционная работа и новая сущность офиса. URL: https://www.forbes.ru/partnerskie-materialy/401355-biznes-trendy-2020-distancionnaya-rabota-i-novaya-sushchnost-ofisa (Дата обращения: 19.11.2021).
3. ВЦИОМ: число работающих удаленно россиян во время пандемии возросло в восемь раз. URL: https://tass.ru/ekonomika/8478435 (Дата обращения: 10.11.2021).
4. Бородина Е.Н. Правовое регулирование надомного и дистанционного труда в Российской Федерации // Вестник ВГУ. Серия: Право. 2018. №4 (35), с.270-282
5. Кашехлебова Е. А. К вопросу об изменениях в трудовом законодательстве о дистанционной (удаленной) работе (опыт пандемии covid-19) // Вестник Университета имени О. Е. Кутафина. 2021. №8 (84), с.118-124
6. Трудовой кодекс Российской Федерации от 30.12.2001 N 197-ФЗ (ред. от 05.04.2021) // СПС КонсультантПлюс.
7. И.С. Козлов, Н.С. Калинина. Коворкинг, как современный способ формирования школьных пространств // Системные технологии. - 2021.- № 38. - с. 142-147
8. CNews Analytics, «Инфосистемы Джет» и Citrix. Организация удаленной работы в крупном российском бизнесе. Итоги 2020. URL: https://www.cnews.ru/articles/2021-01-26_cnews_analytics_itogi_udalenki_2020_i_budushchie. (Дата обращения: 1.12.2021)
9. Курбацкая Татьяна Борисовна, Тараненко Дмитрий Владимирович. Удаленная работа как эффективная форма занятости в условиях пандемии // Московский экономический журнал. 2021. №7, с.325-331.
10. СанПиН 2.2.2/2.4.1340-03 Гигиенические требования к персональным электронно-вычислительным машинам и организации работы
11. СП 44.13330.2011 Свод правил Административные и бытовые здания




