с 01.01.2012 по 01.01.2019
Краснодар, Краснодарский край, Россия
ГРНТИ 67.07 Архитектура
ГРНТИ 67.23 Архитектурно-строительное проектирование
ГРНТИ 67.01 Общие вопросы строительства
ОКСО 07.07.01 Архитектура
ОКСО 07.09.01 Архитектура
ОКСО 07.06.01 Архитектура
ОКСО 07.04.01 Архитектура
ОКСО 07.02.01 Архитектура
ОКСО 07.03.01 Архитектура
ОКСО 270000 АРХИТЕКТУРА И СТРОИТЕЛЬСТВО
ББК 38 Строительство
ББК 8511 Архитектура
ББК 308 Монтаж, эксплуатация, ремонт машин и промышленного оборудования
ТБК 852 Архитектура
Cтатья посвящена изучению мировых и отечественных моделей застройки жилых домов с экономической, социальной и архитектурно-планировочной точки зрения. Подробно описаны экономические принципы формирования рыночной стоимости жилья на первичном рынке, проанализированы семь основных принципиальных моделей, предусматривающих получение жилья в собственность, в зависимости от степени вовлеченности конечного пользователя в процесс проектирования и строительства. Даны определения и рассмотрены базисные принципы спекулятивного девелопмента, кастомизации, индивидуального жилищного строительства в различных его проявлениях, общественных земельных фондов и кооперативного строительства; подсчитана средняя стоимость приобретения жилья на основе различных моделей; обнаружены архитектурно-планировочные и юридические особенности каждой модели. Выявлены основные тенденции в строительстве жилых зданий и проведен сравнительный анализ возможных финансовых моделей застройки на основе проведенных расчетов.
жилой дом, кооператив, доступное жилье, спекулятивный девелопмент, самостоятельное строительство, модель застройки, жск
ВВЕДЕНИЕ
Сегодня многие развитые страны столкнулись с неизбежным жилищным кризисом из-за сверхвысоких цен на жилье [1]. Особенно актуальна данная проблема в крупных городах, в том числе российских, где стоимость даже небольшой квартиры на окраине высока для рядового жителя, не говоря уже о людях с невысоким доходом, например, студентов или молодых специалистов [2].
Потребность в жилье и в качественном коммунальном обслуживании, необходимость улучшения жилищных условий входят в тройку наиболее актуальных для многих россиян проблем [3]. Ведь у жителей в целом гораздо меньше возможностей покупки даже квартир эконом класса, не говоря уже о действительно комфортном жилье, отвечающем всем требованиям конкретной семьи. Тем более что с принятием новых законов в сфере юридических взаимоотношений застройщика с покупателем, страхованием ответственности застройщика и увеличением налоговых ставок, разумно ожидать дополнительное подорожание квадратного метра жилья и вытеснение небольших строительных компаний с рынка почти во всех регионах страны [4]. Таким образом, для многих слоев населения не останется никаких альтернатив, кроме покупки дорогих квартир у олигополии крупных застройщиков.
Для облегчения финансовой нагрузки на семьи, каждый год в разных странах принимают законы, связанные с покупкой и содержанием жилища. Так, например, на конференции ООН по жилью и устойчивому городскому развитию (Хабитат III) в 2016 году был принят документ «Новая Программа Развития Городов», который должен стать основополагающим в работе с рынками недвижимости. В этом документе ясно была обозначена задача, стоящая перед мировым сообществом – выработка новой комплексной социальной и экономической жилищной политики, которая позволит обеспечить доступным жильем все без исключения слои населения, ведь «Жилье — это не удобство, а естественное право каждого» [5]. С аналогичным заявлением выступило правительство Российской Федерации в рамках национального проекта «Обеспечение доступным и комфортным жильем и коммунальными услугами граждан Российской Федерации» [6].
Для реализации данных программ необходимо переосмыслить существующие модели строительства и предложить покупателям более доступные альтернативные варианты приобретения жилья.
Вместе с тем, в настоящее время, при проектировании многоквартирных жилых домов должна стоять задача не только банального предоставления квадратных метров для существования и получения прибыли застройщиком, но и формирования нового более достойного и полноценного образа жизни семей. Известным фактом является то, что городская среда вкупе с индивидуальными жилыми пространствами формирует мышление и моральный облик горожан [7]: как говорил Уинстон Черчилль – «сначала мы строим дома, потом дома строят нас (англ. we shape our buildings, and afterwards, our buildings shape us)» [8].
Таким образом, имеет место необходимость подробного изучения и анализа существующих социально-экономических моделей строительства для последующей разработки новой более совершенной модели, которая позволит жителям приобретать жилье, отвечающее их индивидуальным запросам, по доступным ценам.
МАТЕРИАЛЫ И МЕТОДЫ
В большинстве стран мира доступным жильем является то жильё, которое обеспечивает нормы жилой площади на человека, базовые удобства и социально-бытовые услуги. При этом семья ежемесячно тратит на него не больше 30 % своего дохода. Жильё позволяют сделать доступным пять факторов: стоимость строительства квадратного метра, уровень доходов домохозяйств, процентные ставки по кредитам на покупку жилья, стоимость эксплуатации и технического обслуживания здания, соотношение спроса и предложения на рынке [9].
Если принять за константу процентные ставки по ипотечным кредитам в России и уровень доходов населения (на которые строительный рынок повлиять не в состоянии), то можно сказать, что рыночные цены формируются в зависимости от следующих факторов:
1. Стоимость земли.
2. Принципиальная модель строительства (кооперативное, спекулятивное, индивидуальное строительство и т.д.)
3. Технология строительства жилья и используемые материалы.
4. Архитектурно-планировочная структура здания.
5. Расходы на менеджмент и проектирование.
6. Баланс спроса и предложения на рынке недвижимости [10].
Практически на всех этих показателях можно сэкономить в той или иной степени, но главными среди прочих являются принципиальная модель застройки и баланс спроса и предложения, в то время как остальные пункты не настолько сильно подвержены изменениям.
В современной мировой практике можно выделить семь основных моделей строительства, предусматривающих получение пользователем жилья в собственность, в зависимости от степени вовлеченности участников строительства на разных этапах (табл. 1) [11].
Табл. 1. Принципиальные модели строительства жилья и степень вовлеченности участников строительства на разных этапах
Table 1. The principal models of housebuilding and the degree of involvement of construction participants at different stages

Спекулятивный девелопмент
РЕЗУЛЬТАТЫ ИССЛЕДОВАНИЯ
В международной строительно-инвестиционной практике обычно используется термин «спекулятивный девелопер» (англ. speculative developer) для организации, которая является инициатором и инвестором проекта. Спекулятивный девелопер самостоятельно реализует построенный объект и получает полную прибыль или убытки [12].
Для покупателя стоимость жилища при использовании модели спекулятивного девелопмента складывается из следующих компонентов: стоимость земельного участка, возведение здания, проектирование и менеджмент, банковские процентные займы для строительства объекта, прибыль застройщика, НДС и все применимые налоги [13].
Перечисленные выше пункты формируют рыночную стоимость. Но для конечного пользователя существуют также дополнительные издержки в виде ипотечного кредита (согласно данным ЦБ РФ, средневзвешенная ставка по ипотечному кредиту на 2017 год составляет 9,54%, а средневзвешенный срок – 199 месяцев или 16,5 лет, первоначальный взнос обычно составляет 20% от общей суммы [14]).
Средняя в России фактическая стоимость строительства одного квадратного метра общей площади жилых помещений во введенных в эксплуатацию многоквартирных жилых зданиях согласно данным Росстата составляет 41 773 рубля [15]. Структура этих затрат варьируется в зависимости от месторасположения строящегося жилого дома, наличия коммуникаций, эффективности менеджмента и прочих факторов. Но сами застройщики выделяют следующие основные статьи расходов (усредненные показатели для жилья эконом класса):
Около 10% от себестоимости строительства 1 квадратного метра жилья составляет аренда или покупка земли. На долю проекта, включая согласование и экспертизу, приходится 3-7%. Подключение к инженерным сетям – 10%. На строительно-монтажные работы приходится, по разным оценкам, от 60 до 75 % себестоимости строительства жилья. Также присутствует кредитная нагрузка, обычно равная 3-3,5% от себестоимости квадратного метра. Около 3-5% от себестоимости уходит на маркетинг. Содержание аппарата застройщика – 2,5% [16].
При модели спекулятивного девелопмента, экономические и маркетинговые факторы всегда оказывают наиболее значительное влияние на архитектурно-планировочные решения зданий. Здесь можно выявить следующие особенности:
1. Структурно-композиционная однотипность компоновки помещений квартир у различных застройщиков, связанная с минимизацией рисков при использовании новых проектных решений [17].
2. Стремление к уменьшению размеров квартир: согласно данным Росстата, средняя площадь построенных квартир в России одна из самых маленьких среди европейских стран [15].
3. Стремление сделать максимально возможное количество квартир на этаже и в доме (насколько позволят нормативы).
4. Минимальная площадь общих пространств на этаже.
5. Коридорный тип застройки, отсутствие домов галерейного типа.
6. Большая ширина секции и, как следствие, большое количество неосвещенных помещений (коридоры, кладовые, сан. узлы).
7. Стремление сделать изолированные комнаты в квартире, поскольку они являются предметом продажи в глазах обывателя.
8. Большая площадь коридоров в квартире.
Основным преимуществом модели спекулятивного девелопмента является то, что застройщик берет на себя все риски и ответственность в процессе реализации проекта. Конечный пользователь не беспокоится ни о чем, практически все вопросы застройщик решает без его участия.
Основными минусами данной модели можно назвать высокую стоимость квадратного метра для конечного пользователя, связанную с присутствием дополнительных издержек в виде налогов, прибыли застройщика, расходов на маркетинг и содержание аппарата застройщика. А также низкую адаптивность планировок квартир и необходимость дополнительных затрат со стороны пользователя на перепланировку [17].
Кастомизированный спекулятивный девелопмент
Кастомизация (англ. customization), или другими словами, индивидуализация продукции под конкретного заказчика, дает возможность потребителю высказывать пожелания относительно планировки его квартиры на этапе подготовки проектной документации, или участвовать в строительстве. Таким образом, покупатель приобретает не типовую квартиру, а именно ту планировку, которая соответствует его уникальным потребностям. При этом девелопер по-прежнему исполняет все свои функции в качестве менеджера проекта, генерального подрядчика и продавца готового объекта. Существует несколько способов кастомизации в зависимости от масштабов проекта и пожеланий заказчика:
1. «Свободная планировка»
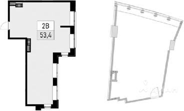
При таком решении застройщик предлагает покупателю пустое помещение без внутренних перегородок, где несущие элементы здания расположены либо по периметру квартиры, либо так, что не создают жестких ограничений в размерах и конфигурациях комнат (рис. 1). Важным моментом при такой системе является расположение входов в квартиру и «мокрых зон», т.к. их расположение изменить нельзя.
Преимуществом данной модели является максимальная гибкость планировочных решений, но при этом покупатель вынужден обращаться к услугам дизайнера и тратить время и деньги на узаконивание планировки. Также значительно дороже выходит ремонт, т.к. в перечень расходов теперь добавляется возведение стен и черновая отделка.

Рис. 1. Планы квартир со свободной планировкой: a - ЖК «Веллтон Парк» (г. Москва); b - ЖК «Башня Федерации» (г. Москва)
Fig. 1. Plans of apartments with a free layout: a - residential complex "Wellton Park" (Moscow); b - residential complex "Federation Tower" (Moscow)
2. Предзаказ
Для зданий, которые находятся на этапе строительства, иногда существует возможность попросить застройщика внести изменения в планировку (рис. 2). При такой схеме требуется тесное взаимодействие архитекторов дома, застройщика, покупателей и дизайнеров. Одной из разновидностей данного метода является заготовка нескольких вариантов планировок для каждой квартиры. Таким образом, у покупателя есть возможность ограниченного выбора на этапе строительства. При этом возрастает стоимость проектных работ, но сокращаются расходы на будущую индивидуализацию квартиры потребителем [17].

Рис. 2. Несколько вариантов планировки одной квартиры
Fig. 2. Several options for planning one apartment
Основным минусом данной модели является ограниченные временные рамки и необходимость скоординированных действий от всех участников процесса проектирования.
Преимуществами данной модели является то, что пользователь в итоге получает именно ту планировку, которая максимально отвечает его индивидуальным запросам, но при этом не вкладывает дополнительные средства и не тратит время на демонтаж и/или возведение новых перегородок.
3. Трансформируемое пространство
Подвижные конструкции в виде перегородок или раскладывающейся мебели могут повысить адаптивность жилого пространства, создавая различные планировочные комбинации в течение дня и ночи в зависимости от текущего назначения (рис. 3). Такая опция на сегодняшний день доступна лишь тем пользователям, которые готовы реализовать подобный проект самостоятельно в готовой планировке от застройщика при помощи архитектора или дизайнера.

a b
Рис. 3. План трансформируемой квартиры (архитектурное бюро PKMN Architectures, Испания): a – днем; b – ночью
Fig. 3. Transformer apartment plan (architectural bureau PKMN Architectures, Spain): a – day; b – at night
Индивидуальное жилое строительство
Можно выделить три основных модели варьирующихся в зависимости от степени вовлеченности конечного пользователя в стадиях реализации проекта [18].
1. Строительство дома «под ключ»
Такая модель применима исключительно в условиях индивидуального строительства частных жилых домов. Пользователь самостоятельно покупает земельный участок и привлекает специалистов для выполнения всех видов проектных и строительных работ. Зачастую это одна компания, которая выступает в роли генерального подрядчика и предлагает готовые проектные решения из каталога в зависимости от пожеланий заказчика. При этом пользователь берет на себя все финансовые риски и осуществляет контроль процесса строительства, не смотря на присутствие проект-менеджера и архитектора. Не менее важным является то, что заказчик принимает все основные решения и имеет право внести изменения и пожелания в проект в любой момент.
2. Самостоятельное управление строительством
Пользователь выступает генеральным подрядчиком и менеджером проекта – закупает материалы, нанимает субподрядчиков, контролирует соблюдение технологии строительства, распоряжается временными и финансовыми ресурсами и отвечает за конечный результат.
Данная модель предоставляет наиболее широкие возможности по кастомизации проектируемого пространства согласно самым прихотливым пожеланиям заказчика. Единственным ограничением выступают технические возможности строительства.
3. Самостоятельное строительство
Пользователь выполняет самостоятельно основную часть работ по возведению дома, при этом может обратиться к специалистам, когда это необходимо. Заказчик не только покупает землю, распоряжается финансами и исполнением проекта, но и самостоятельно выполняет все строительно-монтажные работы. Данная модель хорошо подходит тем, кто уже имеет необходимые знания и ресурсы для организации строительного процесса. В зарубежных странах также получила широкое распространение практика строительства из заготовленных на заводе модулей. Например, проект WikiHouse (Великобритания) [19] – заготовленные файлы с подробной инструкцией для производства небольшого дома на ЧПУ станке из фанеры, которые можно легко собрать в течение 2-3 дней (рис. 4).

a b
Рис. 4. Проект дома WikiHouse: a – общий вид; b – фрагмент из инструкции по сборке
Fig. 4. WikiHouse housing project: a – general view; b – a fragment from the assembly manual
Возведение дома своими силами обычно требует гораздо больше времени и ресурсов. Также этот процесс сопряжен с огромным количеством рисков, поэтому такая модель обычно применима лишь для небольших зданий. Основным преимуществом является полное отсутствие переплат за работу подрядчика или архитектора.
Кооперативное строительство
1. Общественные земельные фонды
В некоторых странах, например, в Канаде, США, Нидерландах, Бельгии, а больше всего в Англии, довольно быстро распространяется схема строительства жилья через общественные земельные фонды (англ. Community Land Trust (CLT)).
Общественный земельный фонд (ОЗФ) – это общественная неправительственная организация с некоммерческим статусом, не облагаемая налогом и обладающая преимущественным правом на владение землей в данном сообществе. Таким образом, местные жители с низким и средним уровнями дохода могут себе позволить приобрести или взять в аренду достойное жилище, открыть небольшое предприятие, заниматься сельским или лесным хозяйством или другим экологически рациональным видом использования земли без необходимости владеть землей или платить необоснованную арендную плату за землю. Вместо этого жители вступают в доступную, долгосрочную (часто на 99 лет) аренду земли у ОЗФ, которая может быть передана в наследство. План управления земельными ресурсами, администрируемый ОЗФ, регулирует общее владение землей в течение длительного времени, независимо от того, кому принадлежат дома или предприятия. ОЗФ гарантирует, что жилье останется доступным для будущих покупателей посредством взаимосогласованного ограничения на стоимость при перепродаже и путем покупки жилья у продавца [20].
ОЗФ пользуется широким спектром мер государственной поддержки: обычно земля предоставляется фондам бесплатно, либо на льготных условиях. ОЗФ уравновешивает потребности отдельных пользователей во владении собственным жильем и потребности сообщества в создании диверсифицированного и устойчивого района, насыщенного социальными услугами.
В России существует похожая модель строительства, но только на муниципальной земле, различием также является то, что муниципалитет не занимается развитием всего района, а предоставляет отдельные лоты для индивидуальной застройки.
Основными преимуществами, помимо предоставления людям доступного жилья, является то, что ОЗФ руководствуется интересами жителей, а не коммерческого застройщика (в схеме исключена прибыль), а также берет на себя ответственность по долгосрочному развитию всего района [21]. Данная схема также привлекательна из-за низкого размера арендной платы и возможности выкупа земли либо по очень низкой стоимости, либо и вовсе бесплатно, при выполнении необходимых условий аренды.
Недостатками являются ограниченный срок аренды, в течение которого необходимо построить дом, невозможность изменения вида разрешенного использования, обязательное проведение торгов для категорий граждан, не имеющих льгот, а также возможность потерять участок при несоблюдении установленных требований [22].
2. Жилищно-строительные кооперативы (ЖСК)
Одной из наиболее прогрессивных моделей в мире является кооперативное строительство. Но в России по данным Росстата на 2017 год только 1% от всего жилья строится жилищно-строительными кооперативами [15]. Организационные формы кооперативного строительства отличаются в разных странах, но суть одна: люди объединяются для постройки жилья, чтобы сэкономить. Так, например, около 75% жилья на Манхеттене (Нью-Йорк, США) являются кооперативами [23], в Копенгагене – 36,5% [24], в Канаде – 23,9% [25], в Швеции - 16% [26] .
Обычно общественный земельный фонд приобретает землю и сдает ее в аренду кооперативу, который от лица сообщества строит жилой дом на заемные банковские средства. Кооператив представляет только интересы пользователей и является некоммерческой организацией. Пользователи после постройки дома приобретают акции кооператива по доступной цене и ежемесячно платят кооперативу взносы за свою долю - пай, которые покрывают расходы на обслуживание, управление и взносы по первоначальному займу на строительство [27]. Как только кредит выплачен – размер взноса уменьшается.
В кооперативах большую роль играет социальная составляющая. Зачастую в таких домах соседствуют разные слои населения, включая людей с ограниченным бюджетом. В таких странах как Швейцария, Канада, Дания и др. государство активно поддерживает кооперативы как раз по этой причине – кооперативы берут на себя заботу о незащищенных категориях граждан, получая взамен массу преимуществ и льгот по сравнению с коммерческим застройщиком. Совместное использование пространства также характерно для кооперативов и способствует тесной коммуникации его членов между собой и обеспечивает их «включенность» в процесс принятия решений относительно общего имущества.
Архитектурно-планировочная структура кооперативного здания может базироваться на типологии жилья по модели спекулятивного девелопмента либо представлять принципиально новый тип жилища, т.к. в основу проекта в большинстве случаев закладываются индивидуальные функциональные схемы использования каждой отдельной квартиры.
Архитектурно-планировочные особенности современного многоквартирного кооперативного жилого дома (в зарубежных странах):
1. Наличие пространств совместного пользования для бытовых нужд и рекреации.
2. Богатая вариативность планировок квартир.
3. Гибкая планировочная структура на основе каркаса.
4. Частое применение галерейного типа застройки.
5. Трехуровневая социальная и архитектурная иерархия пространств – приватное пространство, полу-приватное и общественное.
6. Использование недорогих строительных материалов, зачастую отсутствует чистовая отделка в общественных зонах.
7. Одинаковая внутриквартирная отделка (жители предварительно выбирают подходящий всем вариант).
Присутствие тесного социального взаимодействия в данной модели позволяет реализовать проекты с общими зонами для бытовых нужд и рекреации, что открывает дополнительные возможности для экономии и повышения функциональности здания.
Преимуществ у данной модели очень много, а самое главное из них – возможность приобрести жилье по очень низкой цене: полностью исключены прибыль застройщика, налоги, снижена цена на землю, т.к. она принадлежит ОЗФ или муниципалитету (либо и вовсе подарена кооперативу), снижена стоимость строительства (отсутствуют переплаты за маркетинг и содержание аппарата застройщика). Но одним из главных плюсов кооперативного строительства является возможность исключения ипотеки, и приобретение жилья практически по себестоимости: возможна рассрочка, которая действует в период после окончания строительства [28]. Пользователь также имеет право оформить квартиру в единоличную собственность после того, как выплачен пай (до этого момента собственником жилья будет являться кооператив).
Пользователи могут участвовать в процессе строительства и привлекать те подрядные организации, которые подходят именно им – процесс полностью защищен от спекуляций, а все финансовые манипуляции прозрачны и доступны для ознакомления и обсуждения в любой момент.
Главным недостатком ЖСК является возможность переноса срока сдачи дома, а также изменение стоимости квартиры в процессе строительства из-за многих непредвиденных обстоятельств. Вся ответственность за проблемы ЖСК также лежит на плечах пайщиков.
В России данная модель не популярна также из-за слабой юридической защищенности участников – существует риск двойной перепродажи квартиры, привлечения денег без разрешения на строительство, изменения планировки, заморозки строительства, банкротства и т.д. Но самым сложным является объединение горожан – люди не доверяют друг другу и не хотят взаимодействовать.
Тенденции
На обобщенном графике (график 1) [15, 29] можно увидеть, что наиболее дорогостоящей моделью строительства является модель спекулятивного девелопмента, а наиболее выгодной – самостоятельное строительство. Чем короче цепочка «пользователь – жилье», тем ниже стоимость квадратного метра для пользователя.

График 1. Средняя стоимость квадратного метра жилья при различных моделях строительства: 1 - спекулятивный девелопмент; 2 – индивидуальное строительство «под ключ»; 3 - самостоятельное строительство на кооперативной/ муниципальной земле; 4 – самостоятельное управление строительством; 5 – кооперативное строительство; 6 – самостоятельное строительство.
Chart 1. Average cost per square meter of housing for various construction models: 1 – speculative development; 2 – self-commission; 3 – CLT + self-provide; 4 – self-procure; 5 – cooperative housing; 6 – self-build.
В условиях сегодняшнего рынка недвижимости, где правила игры устанавливает спекулятивный девелопер, бескомпромиссно идеальное жилье в идеальном месте и по доступной цене приобрести практически невозможно и приходится выбирать – либо недорогой частный дом с индивидуализированной планировкой в пригороде, либо стандартизированная и зачастую крайне неудобная планировка по высокой цене в центре города.
Вполне очевидным станет утверждение, что добиться максимальной экономии при получении оптимального результата можно, если пользователи будут строить частные дома. Однако, данная модель не применима в центральных районах крупных городов, так как подходит только для малоэтажного индивидуального строительства.
Если все-таки рассматривать многоэтажную застройку как предпочтительный вариант строительства в центре города либо близлежащих районах, то применимы лишь две модели из рассмотренных – спекулятивный девелопмент и кооперативное строительство. Несмотря на широкую распространенность спекулятивного девелопмента, даже оптимизированный вариант этой модели, при котором значительно уменьшена стоимость квадратного метра за счет применения более технологичных и современных конструкций, более функционального дизайна, законодательного ограничению прибыли застройщика и т.д., не может быть выгоднее, чем кооперативное строительство.
Архитектурно-планировочная структура здания кооперативного типа способствуют тесной коммуникации жителей между собой, что является одним из факторов поддержки незащищенных категорий граждан и в целом положительно влияет на социальный климат как внутри жилого дома, так и в округе, а также открывает широкие возможности по кастомизации планировок квартир.
При модели кооперативного строительства теоретически возможно добиться таких условий, при которых пользователь не обязан соглашаться на компромиссы, и может получить индивидуализированное доступное жилье в предпочтительном районе города.
ЗАКЛЮЧЕНИЕ И ОБСУЖДЕНИЕ
Наиболее дорогостоящей моделью строительства является модель спекулятивного девелопмента, а наиболее выгодной для конечного пользователя – самостоятельное строительство, которое применимо лишь для малоэтажной индивидуальной застройки. В тоже время жилищно-строительные кооперативы делают возможным строительство многоквартирных домов практически по той же стоимости, что индивидуальная частная застройка, благодаря удобной финансовой схеме работы ЖСК. Тем не менее, создание ЖСК на сегодняшний день связано с массой рисков и сложностей, что препятствует распространению данной модели в России.
Проведенный анализ приводит нас к выводу о необходимости переосмысления существующих моделей застройки и создании новой более совершенной модели, которая позволит упростить и удешевить процесс получения жилья для рядового жителя. Наибольший интерес в дальнейшей разработке вызывает модель кооперативного строительства, которая может послужить основным вектором для создания новой социально-экономической модели в сочетании с современными технологиями строительства и средствами массовой коммуникации. Также имеет смысл более подробное рассмотрение и анализ существующих архитектурно-планировочных решений многоквартирных жилых домов на предмет соответствия запросам современного пользователя, а также разработка новых принципов проектирования жилья.
1. Glaeserac E., Gyourko J., Saiz A. Housing supply and housing bubbles // Journal of Urban Economics. 2008. Vol. 64 Issue 2. Pp. 198-217. DOI:https://doi.org/10.1016/j.jue.2008.07.007.
2. Ульянова О. Ю. Жилищный кризис и причины его возникновения в России // Научно-методический электронный журнал «Концепт». 2013. Т. 3. С. 2586-2590.
3. Захарова И.Ю. Проблемы реализации национального проекта «Доступное и комфортное жилье гражданам России» и пути их преодоления // Вестник Челябинского государственного университета. 2009. № 31 (169). Вып. 21. С. 28-33.
4. Поберезкин Е.С. Цены на недвижимость. Дороже есть куда! // Имущественные отношения в Российской Федерации. 2006. № 11 (62). С. 11-36.
5. Генеральная Ассамблея Организации Объединённых Наций Новая программа развития городов. Кито : Организация Объединенных Наций, 2017. 74 с.
6. Российская Федерация. Правительство. Об утверждении государственной программы Российской Федерации "Обеспечение доступным и комфортным жильем и коммунальными услугами граждан Российской Федерации: постановление правительства Российской Федерации от 30 декабря 2017 г. № 1710 // Собрание законодательства Российской Федерации. 2018. № 3. Ст. 546.
7. Hur M., Morrow-Jones H. Factors That Influence Residents' Satisfaction With Neighborhoods // The Ohio State University. 2008. Vol. 40. Issue 5. Pp. 619-635. DOI:https://doi.org/10.1177/0013916507307483.
8. Holahan C. Environment and Behavior: A Dynamic Perspective. Berlin : Springer Science & Business Media. 2012. 188 p.
9. Мустафина Л.Р. Определение доступности жилья для населения: методические аспекты // Проблемы современной экономики. 2014. № 1 (49). С. 185-188.
10. Мирзоян Н.В. Управление стоимостью недвижимости // Факторы конкурентоспособности. 2007. № 2 (2). С. 93-109.
11. Parvin A., Saxby D., Cerulli C., Schneider T. A Right To Build. London : University of Sheffield School of Architecture, 2011. 160 p.
12. Пейзер Р.Б., Фрей А.Б. Профессиональный девелопмент недвижимости. М. : РГБ, 2007. 450 с.
13. Alvarez F., Cacopardo A., Gibbon H., Irvine B., Konrad P., McCrae J., Vesterager M. The Right to Dwell - Manifesto for an Affordable City. Copenhagen : The Royal Danish Academy of Fine Arts, 2017.
14. Центральный банк Российской Федерации Показатели рынка жилищного (ипотечного жилищного) кредитования. М. : Центральный банк Российской Федерации, 2018.
15. Федеральная служба государственной статистики (Росстат) Жилищное и социально-культурное строительство. Строительство в России. М. : Федеральная служба государственной статистики (Росстат), 2018.
16. Сколько стоит дом построить: себестоимость строительства. URL: http://vseon.com/analitika/zhilaya-nedvizhimost/skolko-stoit-dom-postroit-sebestoimost-stroitelstva (дата обращения: 03.02.2019)
17. Асафова Т.Г. Модели архитектурно-планировочной индивидуализации квартир в массовом сегменте жилищного рынка : дисс. ... канд. арх. : М., 2010. 134 с.
18. Parvin A. Architecture (and the other 99%): Open-Source Architecture and Design Commons // Architectural Design Journal. 2013. Vol. 83. Issue 6. Pp. 90-95. DOI:https://doi.org/10.1002/ad.1680.
19. Architecture 00 Micro house. London : Architecture 00, 2016. 63 p. URL: https://github.com/wikihouseproject/Microhouse/blob/master/MicroHouse_AssemblyManual_v1.1_sm.pdf
20. UN-Habitat The Community Land Trusts: Affordable Access to Land and Housing. Global urban economic dialogue series. Nairobi : UN-Habitat, 2012. 46 p.
21. Moore T., McKee K. Empowering Local Communities? An International Review of Community Land Trusts // Housing Studies. 2012. Vol. 27. Issue 2. Pp. 280-290. DOI:https://doi.org/10.1080/02673037.2012.647306.
22. Земельный Кодекс Российской Федерации Федеральный закон от 25 октября 2001 г. № 136-ФЗ // Российская газета - 30 октября 2001 г.
23. Stellin S. Co-op vs. Condo: The Differences Are Narrowing // The New York Times, 2012.
24. Denmark Statistics Dwellings by region, type of resident, use, tenure, ownership and year of construction. URL: https://www.dst.dk (дата обращения: 04.01.2019)
25. Co-operative Housing Federation of Canada Canada’s housing co-ops by the numbers. URL: https://chfcanada.coop/about-co-op-housing/facts-and-figures/ (дата обращения: 04.01.2019)
26. SCB Statistics Sweden Over 4.8 million dwellings in Sweden. URL: https://www.scb.se/en/finding-statistics/statistics-by-subject-area/housing-construction-and-building/housing-construction-and-conversion/dwelling-stock/pong/statistical-news/dwelling-stock-2017-12-31/ (дата обращения: 04.01.2019)
27. Moreau S., Pittini A. Profiles of a Movement: Co-operative Housing around the World. Brussels : CECODHAS Housing Europe and ICA Housing, 2012. 92 p.
28. Иванова Д.Г., Шевня В.И. Региональный рынок ипотечного жилищного кредитования: проблемы и тенденции развития // Государственное и муниципальное управление. Ученые записки СКАГС. 2018. № 1. С. 76-81.
29. Приказ Минстроя России от 13 июня 2017 г. № 86/пр «Об утверждении укрупненных сметных нормативов». URL: http://www.minstroyrf.ru/upload/iblock/5ba/ntss-81_02_01_2017-zhilye-zdaniya.pdf



