Россия
Информационное моделирование зданий (BIM) и его влияние на изменения в строительной отрасли все чаще рассматриваются в строительных исследованиях и отраслевой практике. Обзор литературы выявил основные цифровые инновационные технологии, связанные с информационным моделированием зданий (BIM). Также в данном исследовании рассматривается проектирование промышленного здания в двух программных комплексах Revit и Renga.
информационное моделирование зданий (BIM), BIM-образование, проектирование, виртуальная реконструкция модели, облако точек, моделирование
Строительная отрасль страдает от высокого уровня ошибок, перерасхода бюджета и времени. Основной причиной является неэффективное управление информацией, которая в основном основана на двумерных (2D) чертежах. Информационное моделирование зданий (BIM), связанные с ней методы и технологии позволяют заменить традиционные нецифровые методы интегрированным управлением информацией о проектировании, строительстве, эксплуатации и техническом обслуживании на протяжении всего жизненного цикла здания [1-3]. Использование BIМ способствует улучшению реализации проектов, особенно с точки зрения затрат и времени, поскольку несоответствия в проектах обнаруживаются на ранней стадии, а вероятность ошибочного проектирования, а также связанные с ними затраты и потеря времени устраняются [4].
Образование играет ключевую роль в распространении BIM, об этом говорит растущий отраслевой спрос на выпускников университетов с навыками работы в данной области [5-7]. Внедрение BIM в качестве основного, факультативного или интегрированного предмета в рамках установленной учебной программы бакалавриата является сложной задачей из-за таких ограничений, как доступное время обучения и гибкость учебной программы для адаптации к быстро развивающимся технологиям. В последние годы принимаются различные стратегии преподавания и обучения для студентов строительной отрасли при применении BIM для своих индивидуальных или групповых проектов [8-10]. Многочисленные исследования предложили более комплексный подход к обучению, направленный на преодоление традиционных границ между профессиями в строительной отрасли, которые существуют в образовательных структурах [11-13].
Информационное моделирование зданий (BIM) получает широкое распространение как интегрированный способ управления информацией. BIM – это область слабо связанных систем информационных технологий для моделирования (инструменты разработки), контроля (инструменты проверки моделей) и управления (инструменты планирования) построения информационных потоков внутри и между организациями [14].
Информационное моделирование зданий (BIM) обладает потенциалом создания огромных цифровых данных [15] благодаря своей реализуемой многофункциональности и интеграционным возможностям [16,17]. Оцифровка зданий с помощью информационного моделирования зданий (BIM) набирает обороты в областях архитектуры, проектирования и строительства. Основные преимущества лазерного сканирования: эффективность, высокая точность и прецизионность, малые временные затраты, безопасность и неинвазивность. Для сложных объектов ручное моделирование может потребовать нескольких недель рабочего времени, что делает 3D-моделирование довольно неэффективным. Применяя фотограмметрический процесс, последовательность изображений используется для восстановления геометрии пространства или объекта в 3D-модели [18]. В статье [19] рассматриваются измерения и моделирование зданий с использованием наземного лазерного сканирования, а в качестве вспомогательного метода проводилась ближняя фотограмметрия с беспилотного летательного аппарата. Использование технологии 3D-лазерного сканирования для измерения зданий позволяет получить облако точек и впоследствии создать цифровую документацию, которая позволит создать BIM-модель сканируемого объекта [20]. Исследование [21] показывает, что использование трехмерных моделей, могут порождать многочисленные инновации в технологиях и методах.
Развертывание BIM для модернизации существующих зданий еще не достигло зрелости из-за таких проблем как: отсутствующие или устаревшие данные. Большая часть существующего фонда зданий не имеет ранее существовавшей или обновленной информации о строительстве. В исследовании [22] была проведена фотограмметрическая съемка здания культурного наследия с беспилотного летательного аппарата, сгенерированное 3D-облако точек послужило основой для виртуальной реконструкции модели. Применение BIM вместе с передовыми информационными и коммуникационными технологиями может стать способом решения проблем проектов реконструкции [23], а также реставрации [24].
В строительной отрасли наблюдается стремительная эскалация спроса на использование цифровых инноваций [25] поскольку существует необходимость со стороны инженерных фирм реагировать на правительственный дискурс в отношении отрасли, которая в значительной степени основана на технологических перспективах [26]. Экспериментальное исследование [27] с использованием стандартного программного обеспечения для информационного моделирования зданий (BIM) показывает, что иерархическая структура архитектурных объектов может поддерживать как разработку, так и процесс настройки платформ.
При стремительно развивающихся BIM-технологиях и создании информационных моделей объектов капитального или линейного строительства возникает потребность в создании методик работы с накапливаемым массивом данных [28]. Одним из способов создания структуры полученных BIM-моделей может служить геоинформационная система сначала земельных участков, а затем и городов, созданная на основе CIM-технологий [29]. Применяя CIM на разных этапах жизненного цикла территории и реализуя программы по их развитию, возможно получение необходимой документации на всех ее стадиях [30]. В [31] рассмотрена идея создания при помощи CIM моделей инженерных коммуникаций и вопросы разработки программного обеспечения с учетом импортозамещения программного обеспечения.
В исследовании [32] сформулированы принципы и методы интеграции технологий информационного моделирования зданий (BIM) и цифровых двойников (DT), которые выступают инструментами цифровой трансформации и представления строительных и производственных технологий. Развивая DT возможно решить проблему исследования состояния конструкций здания и получения их прочностных характеристик [33]. На основе цифровых двойников моделей строений возможно применение дополненной реальности (VHR), данная технология является достаточно плохо изученной, в результате чего может начаться угнетение психики человека [34].
Существует множество программных комплексов: AutoCAD Architecture, Autodesk Revit, Renga, Civil 3D и т.д., данное разнообразие программного обеспечения поддерживает обучение BIM, доминируют при этом продукты Autodesk [35-38]. Существует Российская платформа Renga, которая предоставляет возможность совмещения свободного моделирования с объектным представлением конструктивных элементов, аналогично, как и ПК Revit. Данные программы предназначены для архитектурно-строительного проектирования, проектирования металлических и железобетонных конструкций, инженерных систем, совместной работы и документирования результатов проектирования [39]. Рассмотрим функциональные возможности программных комплексов Revit и Renga на примере проектирования промышленного здания. Результаты исследования представлены в таблице 1.
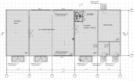
Промышленное здание – строящийся деревообрабатывающий цех в респ. Ингушетия.
Несущие конструкции покрытия — стропильные фермы пролетом 12 м, высотой в коньке 2 м. В уровне верхнего пояса расположены металлические прогоны покрытия из швеллера № 16. Опирание ферм покрытия шарнирное.
Жесткость каркаса обеспечивается установкой вертикальных портальных связей между колоннами.
Жесткость покрытия обеспечивается установкой вертикальных связей по верху стропильных ферм и системой горизонтальных связей по нижнему поясу ферм.
В торце производственного цеха устанавливаются фахверковые колонны из квадратной трубы 200 × 8.
Обрамление ворот, оконных и дверных проемов из квадратной трубы 100 × 4 и гнутого швеллера 100 × 50 × 3.
Внутри деревообрабатывающего цеха устанавливаются стойки под перегородки из двутавра 20Ш1.
Таблица 1 Результаты моделирования
|
План 1 этажа |
ПК Revit |
|
|
ПК Renga |
|
|
|
Фасад 1-6 |
ПК Revit |
|
|
ПК Renga |
|
|
|
Общий 3d вид |
ПК Revit |
|
|
ПК Renga |
|
При проектировании промышленного здания в ПК Revit были выявлены следующие преимущества: наличие стандартной базы семейств с готовыми объектами; наличие функции добавления в семейства индивидуально разработанных объектов. Однако, были выявлены и недостатки: отсутствие возможности разработки чертежей в пространстве модели.
Преимущества проектирования в ПК Renga: программа изначально ориентирован на трехмерное проектирование, когда как двухмерное проектирование рассматривается как дополнительные возможности системы.; в отличии от ПК Revit более простой и интуитивный интерфейс, что позволяет сократить время для ее изучения. Renga Architecture идеально подходит для создания различных моделей: от самых простых до самых сложных и ориентирован на проектные организации различного масштаба.
В результате проведенной работы были подробно рассмотрены функциональные возможности программных комплексов Revit и Renga, а также выявлены их преимущества и недостатки. Также обзор литературы выявил основные инновационные технологии, связанные с информационным моделированием зданий на протяжении всего жизненного цикла здания.
1. Fu, C., Kaya, S. and Kagioglou G. Aouad, M. (2007), "The development of an IFC-based lifecycle costing prototype tool for building construction and maintenance: Integrating lifecycle costing to nD modelling", Construction Innovation, Vol. 7 No. 1, pp. 85-98. https://doi.org/10.1108/14714170710721313.
2. Meng, Q., Zhang, Y., Li, Z., Shi, W., Wang, J., Sun, Y., Xu, L. and Wang, X. (2020), "A review of integrated applications of BIM and related technologies in whole building life cycle", Engineering, Construction and Architectural Management, Vol. 27 No. 8, pp. 1647-1677. https://doi.org/10.1108/ECAM-09-2019-0511.
3. Болотов, Е. Н. BIM-технологи и инженерные системы здания / Е. Н. Болотов // АВОК: Вентиляция, отопление, кондиционирование воздуха, теплоснабжение и строительная теплофизика. - 2021. - № 5. - С. 32-41. - EDN KMHIAV.
4. Barbosa, M.J., Pauwels, P., Ferreira, V. and Mateus, L. (2016), "Towards increased BIM usage for existing building interventions", Structural Survey, Vol. 34 No. 2, pp. 168-190. https://doi.org/10.1108/SS-01-2015-0002.
5. Obi, L.I., Omotayo, T., Ekundayo, D. and Oyetunji, A.K. (2022), "Enhancing BIM competencies of built environment undergraduates students using a problem-based learning and network analysis approach", Smart and Sustainable Built Environment, Vol. ahead-of-print No. ahead-of-print. https://doi.org/10.1108/SASBE-05-2022-0085.
6. Смолева, Н. В. Применение BIM технологий в подготовке специалистов строительного профиля / Н. В. Смолева // Педагогическая наука и практика. - 2018. - № 4(22). - С. 59-63. - EDN YVDKDJ.
7. Помельников, А. А. Организационные особенности внедрения BIM-технологий в строительную отрасль / А. А. Помельников // Поколение будущего: взгляд молодых ученых - 2021 : сборник научных статей 10-й Международной молодежной научной конференции, Курск, 11-12 ноября 2021 года. - Курск: Юго-Западный государственный университет, 2021. - С. 235-238. - EDN LYIVPC.
8. Liyuan Wang, Meiping Huang, Xiaohua Zhang, Xueyuan Yan, Ruoyu Jin, Dariusz Wanatowski, Ali Cheshmehzangi & Navpreet Chohan (2022) Incorporating BIM into the upper-division curriculum of construction engineering and management, European Journal of Engineering Education, DOI:https://doi.org/10.1080/03043797.2022.2112150.
9. Jin, R., Yang, T., Piroozfar, P., Kang, B.-G., Wanatowski, D., Hancock, C.M. and Tang, L. (2018), "Project-based pedagogy in interdisciplinary building design adopting BIM", Engineering, Construction and Architectural Management, Vol. 25 No. 10, pp. 1376-1397. https://doi.org/10.1108/ECAM-07-2017-0119.
10. Calvin Chung Wai Keung, Tak Wing Yiu & Zhenan Feng (2022) Building Information Modeling Education for Quantity Surveyors in Hong Kong: Current States, Education Gaps, and Challenges, International Journal of Construction Education and Research, DOI:https://doi.org/10.1080/15578771.2022.2094508.
11. Olowa, T.O.O., Witt, E. and Lill, I. (2019), "BIM for Construction Education: Initial Findings from a Literature Review", Lill, I. and Witt, E. (Ed.) 10th Nordic Conference on Construction Economics and Organization (Emerald Reach Proceedings Series, Vol. 2), Emerald Publishing Limited, Bingley, pp. 305-313. https://doi.org/10.1108/S2516-285320190000002047.
12. Olatunji, O.A. (2019), "Promoting student commitment to BIM in construction education", Engineering, Construction and Architectural Management, Vol. 26 No. 7, pp. 1240-1260. https://doi.org/10.1108/ECAM-04-2018-0173.
13. Jin, R., Zou, P.X., Li, B., Piroozfar, P. and Painting, N. (2019), "Comparisons of students’ perceptions on BIM practice among Australia, China and UK", Engineering, Construction and Architectural Management, Vol. 26 No. 9, pp. 1899-1923. https://doi.org/10.1108/ECAM-07-2018-0275.
14. Opeoluwa Akinradewo, Clinton Aigbavboa, Ayodeji Oke, David Edwards & Nyenga Kasongo (2022) Key requirements for effective implementation of building information modelling for maintenance management, International Journal of Construction Management, DOI:https://doi.org/10.1080/15623599.2021.2023724.
15. Faris Hyder Ali & Shamsulhadi Bandi (2022) Correlation between BIM data creation and big data attributes in construction, International Journal of Construction Management, DOI:https://doi.org/10.1080/15623599.2022.2119071.
16. Matan Mayer and Martin Bechtold (2020) Data refinement for urban scale life cycle modeling, Architectural Science Review, 63:3-4, 351-360, DOI:https://doi.org/10.1080/00038628.2019.1689914.
17. Jenni Korpela, Reijo Miettinen, Teppo Salmikivi & Jaana Ihalainen (2015) The challenges and potentials of utilizing building information modelling in facility management: the case of the Center for Properties and Facilities of the University of Helsinki, Construction Management and Economics, 33:1, 3-17, DOI:https://doi.org/10.1080/01446193.2015.1016540.
18. Matti Kurkela, Mikko Maksimainen, Arttu Julin, Juho-Pekka Virtanen, Ilari Männistö, Matti T. Vaaja & Hannu Hyyppä (2022) Applying photogrammetry to reconstruct 3D luminance point clouds of indoor environments, Architectural Engineering and Design Management, 18:1, 56-72, DOI:https://doi.org/10.1080/17452007.2020.1862041.
19. Izabela Skrzypczak, Grzegorz Oleniacz, Agnieszka Leśniak, Krzysztof Zima, Maria Mrówczyńska & Jan K. Kazak (2022) Scan-to-BIM method in construction: assessment of the 3D buildings model accuracy in terms inventory measurements, Building Research & Information, 50:8, 859-880, DOI:https://doi.org/10.1080/09613218.2021.2011703.
20. C. Rodríguez-Moreno, J. F. Reinoso-Gordo, E. Rivas-López, A. Gómez-Blanco, F. J. Ariza-López & I. Ariza-López (2018) From point cloud to BIM: an integrated workflow for documentation, research and modelling of architectural heritage, Survey Review, 50:360, 212-231, DOI:https://doi.org/10.1080/00396265.2016.1259719.
21. Boland Jr,R. J., Lyytinen, K., &Yoo, Y.(2007).Wakes of innovation in project networks: The case of digital 3-D representations in architecture, engineering, and construction. Organization Science,18(4),631-647. doihttps://doi.org/10.1287/orsc.1070.0304.
22. Patricio Martínez-Carricondo, Fernando Carvajal-Ramírez, Lourdes Yero-Paneque & Francisco Agüera-Vega (2020) Combination of nadiral and oblique UAV photogrammetry and HBIM for the virtual reconstruction of cultural heritage. Case study of Cortijo del Fraile in Níjar, Almería (Spain), Building Research & Information, 48:2, 140-159, DOI:https://doi.org/10.1080/09613218.2019.1626213.
23. Darius Migilinskas, Miroslavas Pavlovskis, Irina Urba & Viačeslav Zigmund (2017) Analysis of problems, consequences and solutions for BIM application in reconstruction projects, Journal of Civil Engineering and Management, 23:8, 1082-1090, DOI:https://doi.org/10.3846/13923730.2017.1374304.
24. Пустовгар А.П., Жунжун Ч., Вэньсэн Ю., Адамцевич А.О. Применение BIM-технологий при реставрации зданий // Промышленное и гражданское строительство. - 2020. - № 6. - С. 42-48. - DOIhttps://doi.org/10.33622/0869-7019.2020.06.42-48. - EDN HUNDUG.
25. Armin Gruen, Martin Behnisch & Niklaus Kohler (2009) Perspectives in the reality-based generation, nD modelling, and operation of buildings and building stocks, Building Research & Information, 37:5-6, 503-519, DOI:https://doi.org/10.1080/09613210903189509.
26. Amna Shibeika & Chris Harty (2015) Diffusion of digital innovation in construction: a case study of a UK engineering firm, Construction Management and Economics, 33:5-6, 453-466, DOI:https://doi.org/10.1080/01446193.2015.1077982.
27. Fredrik Wikberg, Thomas Olofsson & Anders Ekholm (2014) Design configuration with architectural objects: linking customer requirements with system capabilities in industrialized house-building platforms, Construction Management and Economics, 32:1-2, 196-207, DOI:https://doi.org/10.1080/01446193.2013.864780.
28. Алексанин, А.В., Жаров Я.В. Потенциал использования цифровых информационных моделей в рамках управления строительством // Промышленное и гражданское строительство. - 2022. - № 1. - С. 52-55. - DOIhttps://doi.org/10.33622/0869-7019.2022.01.52-55. - EDN UQYNYZ.
29. Дмитриев, А. Н. Марченкова С. В. Развитие инновационной политики при внедрении технологий информационного моделирования // Промышленное и гражданское строительство. - 2020. - № 10. - С. 87-94. - DOIhttps://doi.org/10.33622/0869-7019.2020.10.87-94. - EDN KVCXLZ.
30. Сборщиков, С. Б. Журавлев П. А. Информационно-аналитическое обеспечение реинжиниринга территории и застройки // Промышленное и гражданское строительство. - 2022. - № 3. - С. 52-58. - DOIhttps://doi.org/10.33622/0869-7019.2022.03.52-58. - EDN PWXWOK.
31. Каган, П. Б. Представление информации при проектировании, строительстве и эксплуатации линейных объектов инженерных коммуникационных сетей // Промышленное и гражданское строительство. - 2016. - № 3. - С. 71-75. - EDN VSEOGB.
32. Badenko, V.L., Bolshakov, N.S., Tishchenko, E.B., Fedotov, A.A., Celani, A.C., Yadykin, V.K. Integration of Digital Twin and BIM Technologies within Factories of the Future. Magazine of Civil Engineering. 2020. 101(1). Article No. 10114 DOI:https://doi.org/10.34910/MCE.101.14
33. Перельмутер, А.В. Криксунов Э.З. BIM-технологии в строительном проектировании - «белые пятна» // Промышленное и гражданское строительство. - 2021. - № 5. - С. 60-65. - DOIhttps://doi.org/10.33622/0869-7019.2021.05.60-65. - EDN SZCUBM.
34. Bushra Obeidat&Esra'a Abdul Rahman Jaradat (2022) The influence of virtual human representations on first-year architecture students’ perceptions of digitally designed spaces: a pilot study, doihttps://doi.org/10.1080/09613218.2022.2083549.
35. Плахутина, А. А. Информационное моделирование (BIM) промышленного здания в сейсмическом районе / А. А. Плахутина, М. Н. Шутова // Вестник Волгоградского государственного архитектурно-строительного университета. Серия: Строительство и архитектура. - 2022. - № 1(86). - С. 357-366. - EDN MCFSPA.
36. BIM-технологи в России / Г. И. Воронцов, Г. М. Солодихин, С. В. Пархоменко, Д. М. Горяинов // Градостроительство. - 2017. - № 5(51). - С. 71-76. - EDN ZXWHRP.
37. Создание BIM-модели производственного здания в программной среде Autodesk Revit 2021 / А. А. Ковалев, А. С. Краско, В. В. Пирогов [и др.]. - Москва : ООО "Издательство "Спутник+", 2021. - 251 с. - ISBN 978-5-9973-6082-5. - EDN BQCCXB.
38. Свидетельство о государственной регистрации программы для ЭВМ № 2020618031 Российская Федерация. Renga (Система архитектурно-строительного проектирования, проектирования металлических и железобетонных конструкций, инженерных систем и коллективной работы Renga) : № 2020617145 : заявл. 13.07.2020 : опубл. 16.07.2020 ; заявитель Общество с ограниченной ответственностью «Ренга Софтвэа». - EDN UOGGEX.









