с 01.01.2019 по 01.01.2021
Россия
УДК 72 Архитектура
ГРНТИ 67.23 Архитектурно-строительное проектирование
ГРНТИ 67.01 Общие вопросы строительства
ОКСО 08.02.01 Строительство и эксплуатация зданий и сооружений
ББК 7424 Организация общеобразовательной школы
ББК 308 Монтаж, эксплуатация, ремонт машин и промышленного оборудования
BISAC ARC024000 Buildings / General
Статья посвящена развитию системы школьного образования в России и планировочных решений школьных зданий с начала 19 века и по настоящее время. Затронуты вопросы градостроительной политики и развития тенденций в проектировании школьных зданий. Рассмотрены преимущества, целесообразность и перспективы использования проектных решений, принятых в Финляндии для общеобразовательных школ. Показано влияние зарубежных проектных решений на развитие школьных зданий в России. Рассмотрены факторы, которые должны учитываться при оценке архитектурно-планировочных решений современных школьных зданий.
современные школьные здания, гибкость архитектурно-планировочных решений школьных зданий, общественные пространства общеобразовательных школ, организация внутреннего пространства школьных зданий
Систему полноценного среднего образования в России стали создавать только в начале XIX века. К этому времени грамотное население России (грамотными считались те, кто мог поставить свою подпись, вместо обозначения крестиком) составляло 9,2% в городе и всего 2,7% в селе, при этом надо учитывать, что только 4% жителей страны были горожанами [1]. Вопрос школьного образования стоял чрезвычайно остро, поэтому в 1802 г. в России было учреждено Министерство народного просвещения и узаконена государственная система образования, состоящая из четырех ступеней – приходская школа, уездное училище, гимназия, университет. К концу первой половины XIX века в Петербурге, например, существовало 5 гимназий, а в конце 1850-х годов общее количество гимназистов в Петербурге насчитывало 1425 человек.
Церковно-приходские школы первой половины XIX века согласно уставу 1804 года являлись низшим звеном системы народного просвещения и нередко помещались в церковных сторожках или заброшенных деревенских избах. Во второй половине XIX века открывали приходские школы священники и дьяконы в своих домах и в церковных помещениях [2].
Для гимназий и реальных училищ, как правило, строились специальные здания с большим количеством общественных помещений (мастерские, гимнастические залы, библиотеки и т.д.), на долю учебных помещений приходилось 30% - 35% полезной площади здания.
В 1876 г. на войсковые средства было построено здание Новочеркасской войсковой гимназии, которая до этого размещалась в приспособленных зданиях и до 1854 г. была единственным средним учебным заведением на Дону.

Рис. 1 Здание Новочеркасской войсковой гимназии (сейчас школа № 3)
Войсковая гимназия была не только просветительским центром, но и центром культурной жизни города. Здесь преподавались военные науки, порядок и форма судопроизводства, фехтование и гимнастика. При гимназии работало отделение восточных языков, которое готовило переводчиков для русской армии на Кавказе, педагогическое отделение для подготовки учителей приходских училищ и женских школ, выпустившее около 200 специалистов.
Позже по постановлению Государственного совета Российской империи, в Новочеркасске было открыто Реальное училище, для которого вначале было арендовано существующее здание, а затем на средства войскового капитала построено и 15 июля 1908 года введено в эксплуатацию новое здание (рис. 2).

Рис. 2 Здание Реального училища (сейчас школа № 1) в г. Новочеркасск
В 1935 году Совнарком принял постановление о массовом строительстве школьных зданий в городах и городских поселениях: «Утвердить типы школьных зданий в городах и запретить без разрешения СНК союзных республик проводить строительство нетиповых школ. Обязать наркомов просвещения лично утверждать все проекты школьных зданий в соответствии с установленными типами и нормами школьного строительства». Школьные здания советского периода в подавляющем большинстве строились по типовым проектам, которые гарантировали надежность несущих конструкций, минимальные расходы на проектирование и сжатые сроки привязки проекта. В любом городе России, бывших советских республик можно безошибочно узнать в застройке здание школы.
Появились двухкомплектные (рассчитанные на две параллели классов) школы на 880 учащихся (по два класса с первого по десятый и два подготовительных) с двадцатью двумя классными помещениями для городов. Эта же планировочная система могла использоваться и для школ с тремя классами с пятого по десятый и одним комплектом с первого по четвертый класс. В поселках городского типа строились однокомплектные школы на 400 учащихся с десятью классными комнатами и неполные средние школы на 280 учащихся с семью классными комнатами. Для сокращения расходов на строительство доля учебной площади возросла до 60% за счет сокращения вспомогательных помещений. В зависимости от района строительства использовались местные строительные материалы основных несущих конструкций – кирпич и древесина.
В 1960-70 гг. при проектировании и строительстве школьных зданий в градостроительной политике [3] ставилась задача в первую очередь перевести школы на односменные занятия и рассчитывать классы на 40 человек, а в дальнейшем преобразовать школы в школы продленного дня со снижением численности учеников в классе до 25-30 человек. С этой целью предлагалось использовать типовые проекты школьных зданий на 280, 520 и 960 мест в зависимости от характера и приемов застройки городов и рабочих поселков. Школы вместимостью менее 960 мест предназначались для малых городов и поселков. Для крупных городов разрабатывались проекты типовых школ вместимостью 960 и 1280 мест при численности микрорайона 6-8 тыс. человек; при численности микрорайона 9-12 тыс. человек предлагалось строительство школ на 1600 мест. «Укрупнение школьных зданий предназначено для создания более благоприятных условий для учебно-воспитательного процесса (возможно размещение производственных мастерских, спортивных комплексов и т. д.) и улучшения технико-экономических показателей зданий» - декларировалось пятьдесят лет назад [3]. При выборе типа школьных зданий в конкретных условиях предлагалось отдавать предпочтение зданиям большей вместимости, которые оказываются экономичнее по стоимости строительства. Предполагалось также размещение школ интернатов вместимостью 320 и 560 мест в городах или рабочих поселках, обслуживающих близлежащие мелкие населенные пункты, в которых нецелесообразно создавать общеобразовательные школы из-за недостаточного количества детей школьного возраста. Это полностью соответствует современным нормативным требованиям [4] о наличии в сельской местности пришкольных интернатов из расчета 10% мест общей вместимости образовательной организации при превышении нормативного времени транспортной доступности.
В эти годы было разработано свыше 50 типовых проектов школьных зданий на основе индустриального домостроения, в которых коридоры были заменены залами-рекреациями, а в следующем поколении новых школьных зданий дополнительно предусматривались производственные помещения, актовые и спортивные залы [5]. Например, в мастерской № 4 ЛенЗНИИЭП был разработан проект каркасно-панельного здания школы из трех блоков: в основном корпусе размещались учебные классы, во втором крыле — спортзал и столовая с актовым залом, в двухэтажном блоке, соединяющем основные, располагались гардероб и администрация (рис. 3).

Рис. 3 Школа на Васильевском острове в Ленинграде, 1970. Арх. С. Евдокимов
Сейчас в школах России учится 16 млн. детей и подростков, однако уже в ближайшие годы численность учащихся должна резко вырасти. К 2024 году численность школьников составит почти 20 млн. человек [6], и система общего образования должна отвечать этому вызову. В предыдущие годы численность школ и детских садов в России значительно сократилась. Результатом проведенной оптимизации стало сокращение с 2001 г. по 2018 г. числа детских садов с 51 до 48 тыс., сельских школ — с 46 до 24 тыс., городских — с 23 до 18 тыс. единиц. В результате, уже сейчас примерно 13% всех школьников вынуждены заниматься во вторую и третью смены. Вопрос перевода школ на односменные занятия актуален, как и 50 лет назад.
Какими должны быть школьные здания, соответствующие современным требованиям?
За последние 20-30 лет в градостроительстве России появились новые тенденции, но, по-прежнему, в большинстве городов остается популярным советский тип квартальной и микрорайонной застройки территорий многоэтажными жилыми домами, в которых согласно [4] должны находится школы и детские сады. Школьные здания, как и раньше, остаются самыми крупными общественными объектами в микрорайоне, нередко служат центром композиции всей застройки.
Новый тип школьных зданий может совмещать в себе кроме основной функции детские дошкольные учреждения, центры досуга, кружковые помещения для дополнительного образования. Для этого увеличивается количество дневного света, проникающего в помещения, совершенствуются связи между различными группами кабинетов, а также разрабатываются композиционные решения пришкольных участков. Наличие в школьном здании хорошо обустроенных общественных пространств, актовых и спортивных залов позволяет использовать их в вечернее время и в выходные дни для нужд микрорайона, что вполне соответствует идеологии гимназических зданий второй половины XIX века.
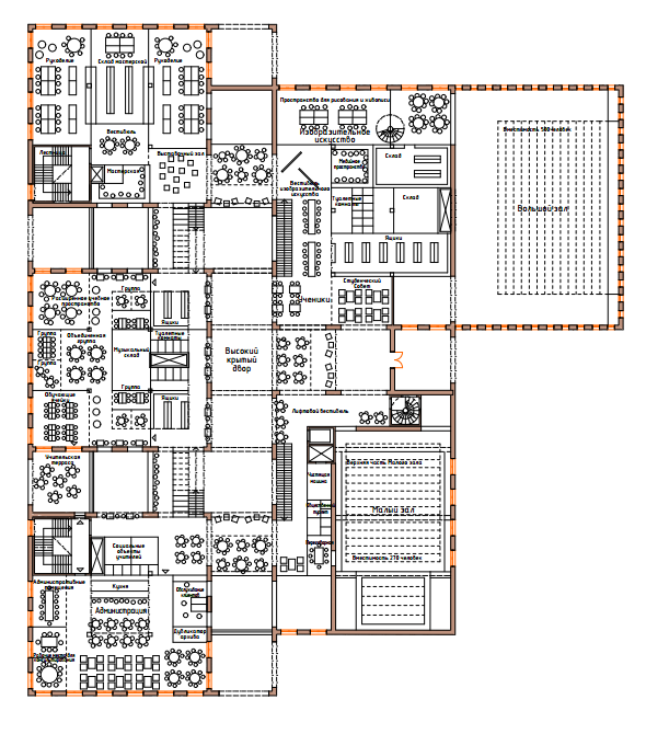
Архитекторы стараются уйти от типовых планировочных решений школ c применением школьного коридора, в котором практически нет света, обеспечить свободный доступ ко всем учебным помещениям и позволить ученикам осваивать их в свободное время [7]. Коридоры заменяются атриумами (рис. 4), что соответствует европейским тенденциям планировки школьных интерьеров. Территория атриума может быть выполнена в виде амфитеатра, который является местом коммуникаций.

Рис. 4 Проект общеобразовательного учреждения в Троицке на 2,1 тыс. учеников. Источник: [12]
В качестве примера рассмотрим планировочное решение школьного здания и общественного цента в городе Туусуле (Финляндия) (рис. 5-6), которое объединяет несколько функций: средняя школа, музыкальный и художественный колледжи [8]. Первая особенность в архитектурно-планировочной схеме здания касается больших пространств, которые служат местом встреч старших и младших школьников, способствуя их социализации. Эти пространства могут использовать не только учащиеся, но и другие пользователи здания для различных видов деятельности, в школе есть внутренние дворы и сады для отдыха детей и учителей. Здание имеет множество просторных помещений, залов, холлов, широких лестниц.

Рис. 5 Планировочная схема 1-го этажа средней школы и общественного цента в городе Туусуле (Финляндия)

Рис. 6 ланировочная схема 2-го этажа средней школы и общественного цента в городе Туусуле (Финляндия)
Примером из отечественной строительной практики может служить новая школа на 550 мест, построенная в районе Нагатинский Затон Москвы (рис. 7). Секции, расположенные по кругу, позволяют разграничить потоки учащихся по возрастному принципу. В них расположены классы начальной школы, творческие мастерские, библиотека, физкультурный зал площадью более 500 кв. метров, медицинский кабинет, комнаты для работы групп продленного дня, столовая и актовый зал.

Рис. 7 Школа на 550 мест в Москве. Источник: [13]
На основании вышеизложенного можно сделать вывод, что при оценке архитектурно-планировочных решений современных школьных зданий должны учитываться следующие факторы:
- гибкость архитектурно-планировочных решений, которая позволяет отказаться от четкого позиционирования функций помещений. Необходимы открытые рабочие зоны с возможностью трансформации пространства, различные по размеру классные комнаты (на 20 чел., на 2-10 чел., лекционные – для работы с потоком), зоны для активных игр в рекреации, коммуникативные пространства - место встреч старших и младших школьников, способствующих их социализации;
- обеспечение доступа всех категорий маломобильных групп населения согласно [9] ко всем основным структурно-функциональным зонам (территория, прилегающая к зданию, вход в здание, пути движения внутри здания, санитарно-гигиенические помещения, пути движения к объекту);
- организация внутреннего пространства зданий должна предоставить детям возможность проводить здесь 10-12 часов в день, сконцентрировав в одном здании все для этого необходимое. Занятия должны проводиться в одну смену, во второй половине дня требуется обеспечить детям школьное питание и дополнительное образование (кружки, производственные мастерские, профессиональная подготовка, спортивные секции), что значительно снизит нагрузку на работающих родителей;
- организация вертикальных и горизонтальных связей в здании, удобство коммуникации, включение природных элементов во внутреннее пространство школы (внутренние дворы и сады);
- компактность планировочных решений и возможность многофункционального использования зданий в городской застройке – для размещения центров досуга, спортивных секций, кружковых помещений для дополнительного образования.
По мнению ряда экспертов, [10,11] — именно принципиально новая школьная архитектура способна изменить типовые представления об образовании, сформировать гибкую систему обучения, которая будет направлена на раскрытие индивидуальности каждого ребенка.
1. Россия в цифрах. 2019: Крат. стат. сб. [Текст] /Росстат - М., 2019 - 549 с.
2. Основы Советского градостроительства. Том 2 [Текст] / Центральный научно-исследовательский и проектный институт по градостроительству. - М.: СИ, 1965. - 482 с.
3. Всеобщая история архитектуры. Том 12. Книга первая. Архитектура СССР. Под ред. Н.В. Баранова. Авторы: А.В. Иконников, В.И. Павличенков. - М.: СИ, 1975 - 548 с.
4. СП 42.13330.2016 Градостроительство. Планировка и застройка городских и сельских поселений
5. Архитектура гражданских и промышленных зданий: Гражданские здания: Учеб. Для вузов [Текст] / Под общ. Ред. А.В. Захарова. - М.: СИ, 1993. - 509 с.
6. Тенденции и принципы проектирования современных общеобразовательных школ / А.Л. Поздняков, Е.В. Позднякова, Ю.В. Скрипкина, Т.А. Ефанова [Текст] // Известия Юго-Западного государственного университета. 2018. Т. 22, № 6(81). С. 72-80.
7. [Электронный ресурс] https://www.rbc.ru/society/28/06/2019/5d16366a9a7947d218d79f3a
8. [Электронный ресурс] High School and Community Centre Project Tests the Limits of Timber Log Construction / Yiling Shen. - URL: https://www.archdaily.com/889345/high-school-and-community-centre-project- tests-the-limits-of-timber-log-construction
9. СП 59.13330.2016 Доступность зданий и сооружений для маломобильных групп населения. Актуализированная редакция СНиП 35-01-2001
10. Позднякова Е.В., Кобелев Н.С., Поздняков А.Л. Анализ некоторых методов проектирования и реконструкции зданий общеобразовательных школ [Текст] // Известия Юго-Западного государственного университета. 2017. № 5(74). С. 62 - 69.;
11. Славинский С.П. Система и типы зданий общеобразовательных школ в структуре большого города: дис. … канд. архитектуры. СПб., 2007.,
12. [Электронный ресурс] https://stroi.mos.ru/stroitelstvo-shkol-i-bnk?from=cl
13. [Электронный ресурс] https://stroi.mos.ru/stroitelstvo-shkol-i-bnk?from=cl




